Druckentwässerungssysteme
Ein Druckentwässerungssystem (DES) ist laut DIN EN 1671 [DINEN1671] ein "System zum Fördern von häuslichem Schmutzwasser durch eine einzelne Druckleitung oder ein verzweigtes Druckleitungsnetz (Anmerkung: Verästelungsnetz oder vermaschtes Netz (Abschnitt 1.1.1) mit am Beginn der Druckleitungen (Anmerkung: d.h. beim Sammelraum) angeordneten Druckerzeugern. Die Übergabestelle ist der Ort, an dem der gesamte Durchfluss aus dem Druckentwässerungssystem unter Umgebungsdruck in z.B. einen Schacht, einen Freigefällekanal (Anmerkung: Freispiegelkanal [DINEN12889:2000]) oder einen Pumpensumpf abgeleitet wird" (Bild 6.2.2.5.3-1).
Dem Sammelraum fließt das Schmutzwasser im Freigefälle zu. "Dieser Raum kann ein Sammelbehälter oder ein Sammelschacht sein" [DINEN1671], an dem ein oder mehrere Gebäude angeschlossen werden.
Der Sammelschacht (auch als Pumpstation bezeichnet) kann aus Ortbeton, aus zementgebundenen oder Kunststoff-Fertigteilen hergestellt werden und muss wasserdicht sowie indirekt belüftet sein (Bild 6.2.2.5.3-2) (Bild 6.2.2.5.3-3) (Bild 6.2.2.5.3-4) (Bild 6.2.2.5.3-5). In Abhängigkeit seiner geometrischen Abmessungen ist es unter Umständen möglich, ihn im Zuge der grabenlosen Leitungsverlegung als Start- oder Zielschacht zu nutzen.
|
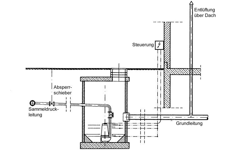
Bild 6.2.2.5.3-2:
Beispiele für die Ausbildung eines Sammelraums für ein DES - Prinzipskizze [ATVA116] |
Bild 6.2.2.5.3-3:
Beispiele für die Ausbildung eines Sammelraums für ein DES - Polymerbetonschacht (zwei Schnittansichten) [FI-ARGE] |
|
Bild 6.2.2.5.3-4:
Beispiele für die Ausbildung eines Sammelraums für ein DES - Kunststoffschacht (lichter Durchmesser 800 mm) [FI-Jung] |
Bild 6.2.2.5.3-5:
Beispiele für die Ausbildung eines Sammelraums für ein DES - Anordnung und Einbindung des Kunststoffschachtes [FI-Jung] |
Der Druckerzeuger ist eine "beim Sammelraum installierte Pumpe, die den Druck für den Transport des Schmutzwassers durch das Leitungssystem erzeugt" [DINEN1671].
Bei Anordnung der Druckleitungen in Form eines Ringnetzes können an ausgewählten Stellen zusätzlich Druckluftstationen angeschlossen werden, um das Leitungssystem mit Druckluft zu spülen, was folgendes bewirkt [ATVA116] :
- die Aufenthaltszeit des Schmutzwassers wird verkürzt
- die Bildung von H2S wird vermindert
- es wird Sauerstoff ins Schmutzwasser eingetragen
- hohe Spülgeschwindigkeiten lösen Ablagerungen und Inkrustationen
Die Druckleitungen im Sammelraum und im Leitungssystem müssen nach ATV-A 116 [ATVA116] eine Mindestnennweite von DN/ID 65 aufweisen und nach DIN EN 1671 [DINEN1671] für einen Betriebsdruck von mindestens 6 bar ausgelegt werden. Sie werden in der Regel dem Geländeverlauf folgend, fallend und steigend und unter Beachtung von DIN EN 805 [DINEN805] frostfrei verlegt. Hoch- und Tiefpunkte können nach Bedarf angeordnet werden [Overa01].
"Bögen, Anschlüsse und Absperrarmaturen sind in ausreichender Weise zu stabilisieren. Scharfe Richtungsänderungen sind möglichst zu vermeiden, um die Bildung von Verstopfungen zu verhindern. In leeren Leitungen auftretende Kräfte sind zu beachten und Maßnahmen gegen möglichen Auftrieb in Betracht zu ziehen" [DINEN1671].
Im Abstand von höchstens 300 m sind Spülhydranten vorzusehen [Hartm93].
Bei Leitungen DN/ID 80 sollte ein Abstand von 250 m nicht überschritten werden, um entlang der Strecke zusätzliche Kontroll- und Spülmöglichkeiten zu gewährleisten [ATVA116].
Die Durchführung der Druckleitung durch die Wand des Sammelraumes ist konstruktiv so zu gestalten, dass Rohrbrüche infolge Vibrationen, Setzungen, Torsionen oder Biegungen ausgeschlossen werden.
Als mögliche Werkstoffe für die Druckleitungen bzw. die Formstücke kommen in Frage (Abschnitt 13) [Jedli96] [ATVA116] :
- Polyvinylchlorid (PVC)
- Polyethylen
- Glasfaserverstärkter Kunststoff (GFK)
- Stahl
- Edelstahl
- duktiles Gusseisen
- Faserzement
Außer in Druckentwässerungssystemen finden Druckleitungen in Kombination mit Pumpanlagen gelegentlich auch in Freispiegelsystemen Anwendung. Sie werden in der Regel als Einzelleitungen eingesetzt, um zu große Tiefenlagen zu vermeiden oder um tiefliegende Gebiete zu entwässern. Sie können gemäß DIN EN 752-6 [DINEN752b] auch bei Regenentlastungsbauwerken oder Auslaufkanälen erforderlich werden, um Abflüsse in höher gelegene Kläranlagen und Vorfluter einzuleiten.
Eine Spezialanwendung stellt in diesem Zusammenhang der Düker dar. Dabei handelt es sich nach DIN EN 752-1 [DINEN752b] um einen "Abschnitt einer Freispiegelleitung oder eines Freispiegelkanals, welcher tiefer als die oben- und untenliegenden Abschnitte angeordnet ist, damit ein Hindernis unterfahren werden kann, und der daher unter Druck betrieben wird".
Die Nennweite für Druckleitungen als Bestandteile von Freispiegelsystemen wird unter Berücksichtigung der Bemessungsdurchflüsse, der Mindestgeschwindigkeiten zur Vermeidung von Ablagerungen etc. festgelegt (DIN EN 752-6 [DINEN752b]). Damit sind Nennweiten bis zu mehreren Metern möglich.
