Anforderungen und Einsatzmöglichkeiten
Injektionsgrenzen für Injektionsmittel in Abhängigkeit von der Kornverteilung [Maidl83a]
Der jeweilige Einsatz der genannten Injektionsmittel richtet sich nach den chemischen und mechanischen Anforderungen in Abhängigkeit vom jeweiligen Anwendungsfall (Schadensart, Zweck und Zielsetzung der Injektionsmaßnahme) und/oder bei Einbindung der Leitungszone in die Injektionsmaßnahme nach den geologischen und hydrogeologischen Bedingungen des dort abzudichtenden und/oder zu verfestigenden Lockergesteins.
Maßgebende Lockergesteinsparameter sind dabei z.B.:
- Schichtgrenzen und -mächtigkeit im Bodenaufbau;
- chemisch-mineralogische Zusammensetzung;
- Kornverteilung;
- Lagerungsdichte;
- Porenanteil, Porengröße und Porenstruktur;
- Wasserdurchlässigkeit;
- Grundwasser
- Grundwasserstand und dessen Schwankungen,
- Strömungsrichtung und -geschwindigkeit,
- Chemismus;
- Temperatur.
Unter Berücksichtigung beispielsweise der Kornverteilung des zu injizierenden Lockergesteins ergeben sich die im (Image 5.2.2.1.1-1) dargestellten unteren Grenzbereiche für die o.a. Injektionsmittel. Die hier nicht dargestellte obere Grenze wird u.a. bestimmt von wirtschaftlichen Gesichtspunkten und von der Forderung, daß das Injektionsmittel nicht durch gravimetrische oder hydrogeologische Einflüsse aus der injizierten Zone entweicht.
Diesem möglichen Effekt, aber auch deutlichen Inhomogenitäten bezüglich der Kornverteilung und somit auch des Durchlässigkeitsbeiwertes innerhalb einer zu injizierenden Schicht bzw. übereinandergelagerter oder angrenzender Schichten begegnet man durch die Wahl kleiner Injektionsabschnitte (Manschettenrohrverfahren, (Abschnitt 5.2.2.2) ) und insbesondere durch Mehrphaseninjektion verschiedener Mittel.
Bei der letztgenannten Variante werden im allgemeinen zuerst die größeren Hohlräume des Baugrundes mit hochviskosen oder auch mit Füllstoffen, z.B. Papierschrott, Textilfasern und Styroporkugeln, versetzten Injektionsmitteln und anschließend die feineren Poren mit niedrigviskosen Injektionsmitteln gefüllt. Zu Beginn des zweiten Injektionsvorganges muß das zunächst eingebrachte Injektionsmittel soweit erhärtet sein, daß es beim zweiten Arbeitsgang nicht mehr aus den Hohlräumen herausgedrückt wird [Stein87d] . Injektionsmittelverlust kann auch durch hohe Reaktionsgeschwindigkeit vermieden werden.
Bei der Injektion von außen (Abschnitt 5.2.2.2) und bei der Scherbensanierung (Abschnitt 5.2.2.4.2) stellt die Leitungszone den vornehmlich zu injizierenden Bereich dar. Ihre Gestaltung und Beschaffenheit wird ausführlich im (Abschnitt 1.6.1) behandelt.
Jede Injektion, bei welcher eventuell das Grundwasser beeinträchtigt wird, unterliegt in der Bundesrepublik Deutschland dem Gesetz zur Ordnung des Wasserhaushalts (Wasserhaushaltsgesetz - WHG). Dieses läßt sich bezüglich der Frage der Umweltverträglichkeit von Injektionsmaßnahmen nur so interpretieren, daß nach § 1a, Abs. 1 "jede vermeidbare Beeinträchtigung unterbleibt" und nach § 1a, Abs. 2 "jedermann verpflichtet ist, bei Maßnahmen, mit denen Einwirkungen auf die Gewässer verbunden sein können, die nach den Umständen erforderliche Sorgfalt anzuwenden, um eine Verunreinigung des Wassers oder eine sonstige nachteilige Veränderung seiner Eigenschaften zu verhüten…". Darauf basierend schreibt das WHG im § 34 Abs. 1 vor, daß die Genehmigung zum Einleiten von Stoffen in das Grundwasser nur erteilt werden darf, wenn eine schädliche Verunreinigung oder sonstige nachteilige Veränderung der Eigenschaften des Grundwassers nicht zu besorgen ist. "Für Stoffe, die in den Boden und in das Grundwasser eingeleitet werden, ist deshalb das ökologische Wirkungsspektrum des jeweiligen Stoffes/technischen Produktes zu überprüfen und in einem Zulassungsverfahren gleichwertig zu anderen Kriterien zu bewerten und zu berücksichtigen."
Während Injektionsmittel auf der Basis von Zement diesbezüglich in der Regel als unbedenklich einzustufen sind, hat die Thematik der Umweltverträglichkeit für die in den letzten Jahren verstärkt eingesetzten Injektionsmittel auf der Basis von Lösungen zunehmend an Bedeutung gewonnen.
Im Rahmen der bauaufsichtlichen Zulassung ist die Beurteilung des Umweltverhaltens grundsätzlich erforderlich und ein unverzichtbarer Prüfungsbestandteil [DIBt94a] .
Einen Vorschlag für ein diesbezügliches Untersuchungsprogramm für Injektionsmittel, welches die Grundlage beim DIBt zum Nachweis der Umweltverträglichkeit im Rahmen der bauausichtlichen Zulassungsuntersuchungen [DIBt94a] bildet, enthalten (Image 5.2.2.1.1-2) und (Table 5.2.2.1.1-1) . Nach [Grund87] ist der Umfang der erforderlichen Tests von der Art des Injektionsmittels abhängig. Auf die Punkte 1 und 2 der Stofferfassung kann sicherlich nicht verzichtet werden. Auch die Abbaubarkeit der Ausgangs- und Reaktionsprodukte ist unbedingt nachzuweisen.
Mögliche Untersuchungen bei der Prüfung der Umweltverträglichkeit von Injektionsmitteln [Grund87]
| erforderlich für Stoff⁄Produkt | ||
|---|---|---|
| A. | Stofferfassung | |
| 1. Analytische und mengenmäßige Erfassung der Ausgangsstoffe (je nach Rezeptur) 2. Analytische und mengenmäßige Erfassung der Reaktionsprodukte wie Hydrolyseprodukte, primäre Abbauprodukte, Nebenprodukte 3. Anionen, Schwermetall−Kationen 4. Summenparameter
|
||
| B. | Wirkung und Abbau | |
| 1. Toxizitätstests Akute Säugetiertoxizität Akute Fischtoxizität (Goldorfen) Akute Daphnientoxizität
|
||
| 2. Biologische Abbaubarkeit Modifizierter OECD-Screening−Test Abbau unter aeroben und anaeroben Bedingungen |
||
| C. | Langzeitwirkungen | |
| D. | Physikalische, chemische und Bodenparameter
|
|
Beispiele zur Einschränkung der Tests:
- Werden keine Anionen/Schwermetall-Kationen eingebracht und wird der pH-Wert bei der Reaktion nicht wesentlich verändert, so ist Pkt. 3 in der Stofferfassung nicht nötig.
- Sind z.B. keine organischen Halogenverbindungen in der Rezeptur, entfällt auch deren Ermittlung (AOX).
- Im allgemeinen kann auch auf die Bestimmungen der akuten Säugetiertoxizität verzichtet werden.
- Die Mutagenitäts- bzw. Kanzerogenitätstests (z.B. Ames-Test) sind nur in begründeten Verdachtsfällen durchzuführen.
Auf der Grundlage dieses Prüfprogrammes sind in Abstimmung mit dem Deutschen Institut für Bautechnik, Berlin im Rahmen eines Forschungsvorhabens auf dem Markt befindliche Injektionsmittel für die Abdichtung undichter Rohrverbindungen bezüglich ihrer Umweltverträglichkeit von der Ruhr-Universität Bochum und dem Institut für wassergefährdende Stoffe (IWS), Berlin, geprüft worden [Stein92a] .
Die Injektion des Mittels erfolgt mit der jeweils in der Praxis verwendeten Injektionseinrichtung in einem Versuchsstand (Image 5.2.2.1.1-3) mit eingebauter Rohrverbindung und der Möglichkeit der Simulation einer Grundwasserströmung. Zur Herstellung eines definierten Schadens in der Rohrverbindung wird auf den Einbau der Elastomerdichtung verzichtet und der Muffenspalt vergrößert. Nach erfolgter Injektion werden Wasserproben nach einem vorher festgelegten Zeitschema entnommen und analysiert.
Die Untersuchungen haben ergeben, daß einige der getesteten Kunstharzsysteme durchaus den ökologischen Kriterien - insbesondere hinsichtlich der Güterabwägung "temporäre Kontamination durch Injektionsmittel/permanente Kontamination durch exfiltrierende Abwässer" - standhalten [Stein92a] [Stein91a] .
Die Bescheinigung der Umweltverträglichkeit erfolgt nicht separat, sondern im Rahmen des bauaufsichtlichen Prüfbescheides.
Die o.a. Untersuchungen sind auch für Injektionsverfahren und -mittel, die zur Abdichtung und/oder Verfestigung von Bereichen der Leitungszone von außen eingesetzt werden, durchzuführen.
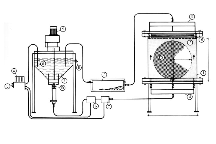
Einen Schnitt durch die hierfür eingesetzte Versuchs- und Prüfeinrichtung zeigt (Image 5.2.2.1.1-4) . Sie erlaubt es, unter praxisüblichen Bedingungen und unter Variation der geologischen und injektionstechnischen Parameter, Injektionskörper herzustellen, die anschließend einer simulierten Grundwasserströmung ausgesetzt werden können. Ziel dieses vergleichsweise aufwendigen Prüfprozederes ist die Beurteilung des Umweltverhaltens aller Injektions- bzw. Verfahrensphasen sowie aller Reaktionsschritte bis zum ausgehärtenden Produkt unter realitätsnahen Bedingungen.
Image 5.2.2.1.1-2:
Flußdiagramm eines Untersuchungsprogramms für die Umweltverträglichkeit von Injektionsmitteln in Anlehnung an [DIN4093:1987] [Quelle: STEIN Ingenieure GmbH] |
Innerhalb des Lebensmittel- und Bedarfsgegenständegesetzes für den Trinkwasserbereich [NN77] wird ein genormtes Prüfverfahren für sich in Trinkwasserbereichen befindliche Bedarfsgegenstände, wie z.B. Rohre oder Dichtungen, angegeben (sog. KTW-Richtlinien). Dieses Verfahren ist nicht auf Lockergesteinsinjektionen übertragbar, wird aber häufig - in Ermangelung anderer anerkannter Prüfverfahren - als Beleg für die ökologische Vertretbarkeit vorgelegt und akzeptiert. In diesen Verfahren werden nur ausgehärtete Injektionsmittel geprüft, Immissionen während der Reaktion werden nicht erfaßt. Neben den genannten Anforderungen für die Verfestigung und/oder Abdichtung von Lockergestein ergeben sich für die Rißabdichtung oder -verfestigung in Kanälen bzw. Bauwerken der Ortsentwässerung (Abschnitt 5.2.2.3) noch weitere zu beachtende Parameter für die Auswahl des jeweils geeigneten Injektionsmittels, auf die nachfolgend eingegangen wird.
