The structural design of large non-circular GRP prefabricated linings
Jun 19, 2008
As happened in the UK, 20 years ago, when the WRc started to work on the Sewer Rehabilitation Manual (SRM), in 1999 the French ministry of Public Works decided to launch a National Project of Research and experimentation program called RERAU, covering the “Rehabilitation of Urban Network Sewers” in order to increase the knowledge in regard to the area of sewer system rehabilitation.
- a simplified design formula which extends Glock’s analysis for evaluation of safety with regard to buckling
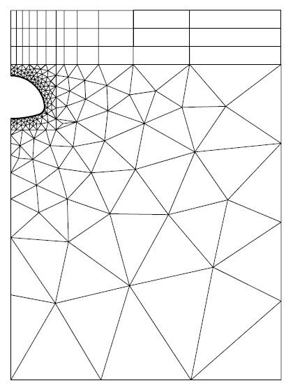
- a new design method based on finite element method analysis (F.E.M.) specially for large (man-entry), non-circular GRP linings and special non conventional loads. The design principles of this F.E.M. approach and two case studies are presented in the paper.
The second case study is a corrugated steel pipe arch buried in a motorway’s embankment and relined by a horseshoe GRP prefabricated lining. In this case, because of the heavy corrosion of the steel, it was considered that the host steel pipe arch would loose its hoop compressive stiffness after lining.
- Ability to sustain the grouting pressure during installation (where appropriate).
- Ability to sustain the external head of groundwater pressure that must be considered to arise once hydraulic integrity is restored.
- And eventually ability to sustain soil loading transfer if the sewer loses its hoop compressive stiffness after lining.
- Height : 1761 mm
- Width : 866 mm
- Thickness : 17 mm
- Radius of the straight section : 2278 mm
- Mean Perimeter : 4430 mm
- Young modulus : 11000 MPa
- Long term modulus (wet cree value): 3700 MPa
- Bending strength : 60 MPa
pw = 10 ⋅ (2.3 - 0.7) = 16 kPa
pcr = 0.455 ⋅ k0.4 ⋅ EL ⋅ [t2.2 / (P0.4R1.8)]
pcr = 0.455 ⋅ 1.32 ⋅ 3700 ⋅ [172.2 / (44300.422871.8)] = 35 kPa
The safety factor for the stability is:
γF = 35/16 = 2.2 > 2
The safety factor for stability security must be greater than 2.
- If the host sewer loses its hoop compressive stiffness after lining.
- If a subsequent excavation near the renovated pipe is undertaken.
- If the host sewer is obviously in an unstable ground, where the source of instability is not eliminated by lining.
- The first method is for linings that form a bond to the grout, so that the renovated sewer acts as a composite section (WRc type I linings)
- The second method is for linings that form no bond with the grout (type II linings).
- The old sewer and the grout act like the surrounding soil.
- The lining is behaving like a flexible structure in interaction with the soil.
- The effect of time is introduced by multiplying the elastic modulus by a creep factor.
- Height of soil above the crown: 12.0 m.
- Height of the table water above the invert: 2.3 m.
- Elastic modulus of soil Es = 10 MPa.
- Specific weight of soil γ = 20 kN/m3.
- Embedment: mixed grained soils with low fine fraction, relative compaction Dr > 95% OPN.
- Height: 1557 mm
- Width: 2469 mm
- Thickness: 33 mm
- Radius of the invert section: 3567 mm
- Mean Perimeter: 6500 mm
- Young modulus: 11000 MPa
- Long term modulus: 3700 MPa
- Bending strength: 60 MPa
pw = 10 ⋅ (1.6 + 0.5) = 21 kPa
pcr = 0.455 ⋅ k0.4 ⋅ EL ⋅ [t2.2 / (P0.4R1.8)]
pcr = 0.455 ⋅ 3700 ⋅ [332.2 / (65000.435671.8)] = 44.4 kPa
In this case, k=1 because there is only one lobe (at the invert).
γF = 44.4/21 = 2.1 > 2
The safety factor for stability security must be greater than 2.
- the vertical deflection must be less than 3% of the lining height;
- the maximal bending stress must be less than the bending strength divided by a safety factor of 1.5.
[2] WRc/WAA - Sewerage rehabilitation manual. UK Water Research Center / Water Authorities Association, 1994-2000.
[3] Thépot O., 2000, A new design method for non-circular sewer linings. Trenchless Technology Research, Vol. 15, No. 1, 25-41.
[4] Thépot O. 2001, Structural design of oval-shaped sewer linings, Thin-Walled Structures, Vol. 39, 499-518.
[5] Avis Technique CSTB NC Line 17/04-155 , HOBAS France. Technical specifications of GRP panels.
1 HOBAS France, BP 216 F-95523 Cergy Pontoise, France, jeanmarie.joussin@hobas.com
2 EAU DE PARIS, 21-23 rue de la Vanne, 92120 Montrouge, France, thepot@eaudeparis.fr
More News and Articles
Aug 07, 2025
News
Kanalgipfel 2025: Netzweite operative Bedarfsplanung mittels individuellem Sanierungskosten- und Entscheidungsmodell
Die Entwässerungssysteme unserer Städte sind ein wesentlicher Bestandteil des kommunalen Anlagevermögens. Die große Zukunftsaufgabe, …
May 26, 2025
News
Kanalgipfel 2025: Smart Processing – mit KI-Technologien von der Kanalinspektion bis zur Sanierungsstrategie
Die Entwässerungssysteme unserer Städte sind ein wesentlicher Bestandteil des kommunalen Anlagevermögens. Die große Zukunftsaufgabe, …
May 12, 2025
News
Kanalgipfel 2025: Stand der Kanalsanierung in Deutschland – Eine kritische Betrachtung
Die Entwässerungssysteme unserer Städte sind ein wesentlicher Bestandteil des kommunalen Anlagevermögens. Die große Zukunftsaufgabe, vor der viele Kommunen …
Aug 28, 2024
News
ITpipes Secures $20M to Transform Water Infrastructure Management
ITpipes announced it has secured $20 million in equity financing from Trilogy Search Partners and Miramar Equity Partners.
Known for its trusted and user-friendly platform, ITpipes …
Aug 26, 2024
News
Professor Dr.-Ing. Dietrich Stein
With deep sadness we announce the loss of our founder and partner Prof Dr Dietrich Stein at the age of 85.
Engineers around the globe are thankful for his dedication to the inventions in the fields of sewers, …
Aug 26, 2024
News
PPI Releases New Installation Guide for PE4710 Pipe
PPI’s MAB-11-2024 Covers HDPE Water Pipelines Up to 60-in. Diameter and 10,000-ft Long Pulls
Developed by the Municipal Advisory Board (MAB) – and published with the help of the members of the …
Aug 23, 2024
News
Faster wide-scale leak detection now within reach
Mass deployment of connected leak loggers is being made possible by the latest technology, writes Tony Gwynne, global leakage solutions director, Ovarro
Water companies in England and Wales are …
Aug 21, 2024
News
Kraken awakens customer service potential in water
The innovative customer service platform Kraken has made a successful transfer from energy to water. Ahead of their presentation at UKWIR’s annual conference, Portsmouth Water chief executive …
Aug 19, 2024
News
Predicting the toxicity of chemicals with AI
Researchers at Eawag and the Swiss Data Science Center have trained AI algorithms with a comprehensive ecotoxicological dataset. Now their machine learning models can predict how toxic chemicals are …
Aug 16, 2024
News
Goodbye water loss: Trenchless pipe renewal in Brazil
Pipe renewal in Brazil
How do you stop water loss through leaks in old pipe systems without major environmental impacts and restrictions? The answer: with trenchless technology, or more precisely …
Aug 14, 2024
Article
Impact of high-temperature heat storage on groundwater
In a recently launched project, the aquatic research institute Eawag is investigating how the use of borehole thermal energy storage (BTES) affects the surrounding soil, the groundwater …
Aug 12, 2024
News
Watercare completes East Coast Bays sewer link
Watercare has successfully finished the final connection on the East Coast Bays link sewer at Windsor Park in New Zealand.
Much of the East Coast Bays sewer link was installed using horizontal directional …
Contact
Dipl. Eng. JM. Joussin [HOBAS France SAS]
95523 Cergy Pontoise, Cedex, France
Phone:
+33 1 34356610
Fax:
+33 1 34350858
