Sanierung großer Kanalprofile mit Hilfe verdämmter GfK-Rohre - aus planerischer und statischer Sicht

29.05.2007

Die Sanierung großer, begehbarer Abwasserleitungen, insbesondere mit Hilfe von verdämmten GfK-Rohren, hat in den letzten Jahren stark zugenommen. Für die statische Auslegung derartiger Baukonstruktionen existiert keine Vorschrift, die für planende Ingenieurbüros und Auftraggeber klare Vorgaben enthält. Das ATV-Merkblatt M 127 Teil 2 [1] bietet zwar Hinweise, für die Dimensionierung kann sie jedoch nur als Anhalt herangezogen werden, da wichtige Problemstellungen nicht in Betracht gezogen werden: Sonderprofile (z. B. Rechteck, Maulprofil, Profile mit Sohlgerinne, s. Bild 1), keine Angaben zu den anzusetzenden Imperfektionen, keine ausreichende Berücksichtigung des Lastfalles Dämmerdruck. Im Folgenden werden planerische und statische Gesichtspunkte aufgezeigt, die wesentliche Voraussetzungen für den Erfolg derartiger Sanierungen bilden. Zunächst werden diese Kriterien allgemein dargestellt. Als Schwerpunkt jedoch werden in der Praxis ausgeführte Baumaßnahmen der Städte Hamburg und Köln dargestellt.

Planerische Gesichtspunkte bei dem Relining von Großprofilen mit GfK
Als übergeordete technische Norm ist die DIN EN 752 [2] insbesondere Teil 5 "Sanierung" von zentraler Bedeutung. Darüber hinaus stehen nur vereinzelt Regeln der Technik für Sanierungsleistungen zur Verfügung. Da dies in der Vergangenheit auch Anbietern ohne jegliche Eignungsnachweise den Zugang zum Markt erleichtert hat, haben einige Kanalnetzbetreiber eigene Qualitätsanforderungsprofile im Sinne gewerksspezifischer "Allgemeiner Technischer Vertragsbedingungen" (VOB/C) für Sanierungsleistungen erstellt. Sie basieren auf dem aktuellen Stand der Technik und berücksichtigen die am Markt verfügbaren Fachinformationen.
Begehbare Kanäle sind als bedeutende unterirdische Infrastrukturbauwerke unter Einbeziehung rechtlicher Vorgaben zu erhalten oder wieder herzustellen. Die Leistungsanforderungen entsprechen gem. DIN EN 752 Teil 5 [2] bezüglich Dichtheit, statischer Belastbarkeit und Resistenz gegen das geförderte Medium denen eines neuen Systems. Vorläufer dieser Norm und noch heute mit ihr geltend ist das ATV-Merkblatt M 143. Teil 3 [3] des Merkblattes enthält eine standardisierte Verfahrensbeschreibung für Reliningverfahren, in Teil 5 werden Empfehlungen für die Ausschreibung von Relingmaßnahmen gegeben.
Der Entscheidung für eine geeignete Sanierungsvariante gehen die Zustandserfassung nach ATV-Merkblatt M 143 Teil 2 und die Bewertung nach ATV-Merkblatt M 149 [5] voraus. Die Merkblätter empfehlen u.a. die Aufstellung eines Prioriätenkonzeptes zur Sanierung mit Festlegung der Reihenfolge und des Sanierungsverfahrens, wie es viele Kanalnetzbetreiber auch erstellt haben. Die Bestrebungen gehen nun dahin, im Rahmen von Verbundprojekten eine ganzheitliche Kanalsanierungsstrategie für Entwässerungsnetze in Deutschland zu entwickeln sowie die Qualitätsanforderungen an die Sanierungsausführung zu vereinheitlichen.
Die Entscheidung für ein Relining mittels GfK-Großprofilen ergibt sich aus technischen Eignungsmerkmalen und betriebswirtschaftlichen Aspekten. Das Verfahren wird seit Jahrzehnten erfolgreich eingesetzt. Die werksseitig vorgefertigten GfK-Profile unterliegen einer permanenten, produktionsbegleitenden Kontrolle durch den Hersteller. Bei zusätzlicher baubegleitender Überprüfung der Materialeigenschaften und der Materialzusammensetzung durch einen amtlich anerkannten Kunststoffsachverständigen wird somit ein hoher Qualitätsstandard gewährleistet. GfK-Großprofile erfüllen auch bei großen Abmessungen und relativ niedrigem Eigengewicht die vorgegebenen Standsicherheitsanforderungen. Weitere Vorteile ergeben sich aus einer kurzen Bauzeit, kaum anfallenden Erdarbeiten, wenig Beeinflussung von Verkehr und Vegetation, geringer Lärmund Staubemissionen und einfacher Baustellenlogistik.
Aus Sicht des Kanalbetriebes muss für die Dauer der Ausführung vor allem sichergestellt sein, dass die Vorflut aufrechterhalten bleibt. Dafür sind geeignete Maßnahmen in Form von Umleitungen, Überpumpen usw. zu treffen. In der Regel werden auch die Schächte im Zusammenhang mit den Kanälen saniert. Bei Erneuerung der Schächte, können die beim Rückbau entstehenden Baugruben für den Einbau der Rohre genutzt werden. Aufgrund der Option, Sonderformen in GfK-Laminattechnik zu fertigen, lassen sich auch Segmentbögen mit integrierten Tangentialschächten oder auch Querschnittsübergänge anfertigen. Die Anbindung von Seitenzuläufen und Hausanschlüssen ist bei begehbaren Profilen über innenliegende Hutmanschetten oder Laminate bei entsprechender Qualifikation ebenfalls problemlos durchführbar. Aus hydraulischer Sicht ist bei Anwendung von Lining- und Montageverfahren immer eine Querschnittsreduzierung in Kauf zu nehmen. Kompensiert wird sie allerdings z. T. durch die geringere Rauhigkeit ("k-Wert") gegenüber dem Altkanal. Das Maß der Querschnittsreduzierung wird beeinflusst durch fertigungstechnisch bedingte Abmessungen der Profile, die Wanddicke der Profile, Zwangspunkte im Kanal, Kanalverlauf (gerade oder Kurven), Transportmöglichkeit im Kanal und schließlich durch die statischen Anforderungen.
Zur Festlegung der endgültigen Abmessungen des GfK-Profils ist eine exakte Kalibrierung des Altkanalquerschnitts erforderlich, da die Profile beim Einbau keine Zwängungen oder Beschädigungen erfahren dürfen. Alte Bestandsunterlagen spiegeln den Realzustand meist nur ungenügend wider. Unter diesem Aspekt und zur Aufnahme von Kurven im Bestand hat es sich bewährt, eine digitale 3D-Vermessung im Vorfeld der Maßnahme durchzuführen. Aufgrund daraus erstellter Verlegepläne lässt sich die Anzahl notwendiger Kurzbaulängen oder schräger Profilsegmente auf ein Minimum reduzieren und eine hohe Verlegegeschwindigkeit unter Beibehaltung der Qualität der Ausführung sicherstellen.
Technologisch können nahezu alle Geometrien hergestellt werden. Die gängigsten Formen sind Ei-, Maul- und Kreisprofile. Darüber hinaus werden auch Kasten- und Haubenprofile gefertigt. Die Herstellung der Rohre erfolgt im Wickel- oder Schleuderverfahren. Im Schleuderverfahren lassen sich jedoch ausschließlich kreisrunde Rohre herstellen. Die Verbindung der im Wickelverfahren hergestellten Sonderprofilrohre erfolgt über an die Rohrenden integrierte Muffen und Spitzenden (Bild 2). Kreisrunde Reliningrohre werden mit einseitig aufgezogenen Dichtungsmanschetten aus Edelstahl oder GfK ausgeliefert. Die Profilbaulänge richtet sich nach der Abmessung der Einbauöffnung oder dem Transport durch Kurven.
Zu empfehlen ist der Einbau mit geeigneten Rohrtransportwagen, die projektbezogen auf die jeweilige neue Geometrie angepasst werden können. Das Koppeln der Profile erfolgt mittels Seilzug oder Hebelpressen. Dabei sind die Verlegerichtlinien des Rohrherstellers zu beachten.
Bei Verfahren mit Ringraumverfüllung ist besondere Aufmerksamkeit der horizontalen und vertikalen Lagesicherung der Rohre im Montagezustand zu widmen. Statische Belange und Vorgaben sind zu berücksichtigen. Sofern möglich, sollen vor der Ringraumverfüllung die Rohrverbindungen mittels eines Prüfgerätes auf Dichtheit untersucht werden. Für die Verfüllung ist der Ringraum am Anfang und am Ende des Verfüllabschnittes zu verschließen. Das Einbringen des Dämmers erfolgt drucklos über in die Rohre oder in die provisorische Abdichtung installierte Befüllstutzen in der Regel vom Tiefpunkt her. Die empfohlene Dämmerwichte beträgt 12–15 kN/m3. Es sind die Vorgaben an den einzusetzenden Dämmer und die Vorgaben aus der Statik wie z. B. max. Dämmereinfüllhöhe, mehrstufige Verfüllung, Position von inneren Austeifungen und der Verkeilungen zur Altrohrinnenwand einzuhalten und zu überwachen.
Statische Gesichtspunkte bei dem Relining von Großprofilen
Die statische Auslegung von Kanalsanierungsmaßnahmen erfolgt im Regelfall auf der Grundlage des ATV-Merkblattes M 127 Teil 2 [1] ergänzt durch das ATV-DVWK-Arbeitsblatt A 127 [5] (Baugrundkennwerte, Lastannahmen). Je nach Altrohrzustand wird der Liner nur für Außenwasserdruck oder aber auch für die Einwirkung von Erdund Verkehrslasten statisch nachgewiesen. Das Merkblatt [1] wurde ganz offensichtlich in erster Linie für die Anwendung bei Close- Fit-Verfahren, insbesondere Schlauchliner, konzipiert, da es sich hierbei um das bisher, seit ca. 30 Jahren, am häufigsten eingesetzten Verfahren handelt (Nennweitenbereich ca. DN 150 bis DN 1400, in Einzelfällen bis DN 2000, ebenfalls Sonderprofile). Bei großen Nennweiten stoßen diese Verfahren jedoch an Grenzen, da die Schläuche u.U. wegen des Gewichtes nicht mehr zur Baustelle transportiert werden können und da die großen erforderlichen Linerwanddicken nur unter erhöhtem Aufwand eingebaut werden können (mehrlagiger Einbau).
In den letzten Jahren sind daher zunehmend Sanierungen mit Hilfe verdämmter Rohre, meist GfK aber auch Polymerbeton, zur Ausführung gekommen. Im Folgenden werden Sanierungen großer Profile durch Relining betrachtet, da hierauf gerade in dem ATVMerkblatt M 127 Teil 2 [1] nur am Rande eingegangen wird. Die Besonderheiten liegen in der Größe der Profile, in der Geometrie der Profile, in den zur Ausführung kommenden Sanierungsverfahren und insbesondere auch in der Fragestellung, ob eine Sanierung überhaupt möglich ist.
Bei den hier betrachteten Großprofien ist zunächst ein ganz besonderer Wert auf die Ermittlung der Eingangswerte für die statische Berechnung zu legen. Profilgeometrie (Abmessungen und Wanddicken), Materialkennwerte des bestehenden Kanals, optischer Zustand des bestehenden Kanals, Baugrundkennwerte und Belastungseinwirkungen (Erdüberdeckung, Verkehrslast, Grundwasserstand) sind zu klären. Erst auf der Grundlage dieser Inforationen sowie ggf. einer statischen Nachberechnung des vorhandenen Zustandes kann geklärt werden, ob der Kanal überhaupt saniert werden kann oder ob ein Neubau erforderlich ist. Als Beispiel zeigt Bild 3 die Unterseite der Stahlbetondeckenplatte eines Ortbetonkastenprofils. Die Betondeckung war entweder bereits abgeplatzt oder konnte durch leichte Hammerschläge abgelöst werden. Der Bewehrungsstahl konnte ebenfalls mit einem Hammer komplett durchschlagen werden. Der vorhandene Kanal, gekreuzt von einer Bundesstraße, ist nicht einmal mehr in Altrohrzustand III einzustufen. Eine Sanierung ist hier nicht mehr möglich. Da die Wände in einem guten Zustand waren, wurde ein Austausch der Deckenplatte empfohlen.
Das ATV-Merkblatt M 127 Teil 2 [1] schreibt je nach Atrohrzustand I, II oder III den Ansatz von Imperfektionen (Spaltbildung, lokale Imperfektion, Gelenkringvorverformung) vor. Die in [1] vorgegebenen Werte gelten jedoch nur für Kreis- und Eiprofile sowie, hierauf wird besonders hingewiesen, nur für Schlauchverfahren und vorverformte Liner mit späterer Rückverformung, nicht aber für verdämmte Verfahren sowie für Sonderprofi- le. Bei den hier betrachteten verdämmten Verfahren ergeben sich nachfolgende Besonderheiten: Es handelt sich um fabrikgefertigte Rohre. Eine lokale Vorverformung resultiert somit nicht wie bei den Close-Fit-Verfahren daher, dass der Liner sich der Kontur des Altrohres anpasst, sondern aus produktionsbedingten Schwankungsbreiten oder aber aus während des Verdämmens eingeprägten Deformationen. Es wird vorgeschlagen, eine sinnvolle Imperfektion zu wählen, bei großen Profilen ca. 10 bis 20 mm, und an der kritischen Stelle anzusetzen. Die Nachweisführung unter Dämmerdruck darf für diesen Punkt unter Gebrauchslast keine größere Deformation liefern. Der Ort des Imperfektionsansatzes ist abhängig vom maximalen Krümmungsradius, möglichen inneren Aussteifungen während des Verdämmens sowie dem einwirkenden Wasseraußendruck. In Zweifelsfällen sind Variationsuntersuchungen durchzuführen. Ein möglicher Ringspalt entsteht bei verdämmten Verfahren nicht wie bei Close-Fit-Vefahren durch ein Schrumpfen des Rohres, sondern u. U. durch ein Schrumpfen des Dämmers. Der Spalt ist somit unabhängig von der Dimension des Rohres. Der Ansatz einer Spaltbreite von 1,0 bis 2,0 mm wird empfohlen. Eine Gelenkringvorverformung wird nicht angesetzt, da es sich um verdämmte Rohre handelt, die sich nicht der Kontur der Altrohre anpassen.
Schließlich soll darauf hingewiesen werden, dass die in jüngster Vergangenheit wieder aufgekommenen Ersatzkreisberechnungen bei den hier betrachteten Großprofilen nicht sinnvoll und auch nicht zielführend sind. Am Beispiel eines Maulprofils unter Erd- und Verkehrslast wird deutlich, dass das statische Modell eines Ersatzkreises das Tragverhalten der realen Struktur schlichtweg falsch abbildet. Während der Ersatzkreis durch Biegemomente und Normalkräfte beansprucht wird findet die Lastabtragung des Maulprofils wegen der Gewölbewirkung in erster Linie über Druckkräfte statt. Dies ist sehr viel günstiger und hat in der Regel geringere Wanddicken als die Ersatzkreisberechnung zur Folge. Das Argument, die Ersatzkreisberechnung liege somit ja auf der sicheren Seite ist nicht ingenieurmäßig, da die Berechnung zum einen fachlich falsch ist und zum anderen unwirtschaftliche Ergebnisse liefert. Ferner soll angemerkt werden, dass seit mindestens 20 Jahren Programme zur Verfügung stehen, mit denen die reale Geometrie im statischen Modell abgebildet werden kann. Schließlich liegen Statiken vor, die fünfzig Jahre und teilweise älter sind und dennoch die tatsächliche Geometrie z. B. von Malprofilen in händischen Berechnungen berücksichtigen.
Praxisbeispiele
Sanierung eines Teilbereiches des Kuhmühlenstammsiels in Hamburg
Im Zuge des Umbaus der HafenCity wurde eine Erneuerung des Kuhmühlenstammsiels im Bereich Magdeburger Straße/Stockmeyer Straße erforderlich, da das ca. 100 Jahre alte gemauerte Profil DN 3000 bis DN 3600 aufgrund einer geplanten Geländeaufhöhung statisch nicht mehr die erforderliche Standsicherheit aufwies. Das Kuhmühlenstammsiel gilt als eine der Hauptadern des Hamburger Sielnetzes und stellt die Ableitung von Mischwasser bis zum Pumpwerk Hafenstraße und weiter zum Klärwerk Köhlbrandhöft auf der gegenüberliegenden Elbseite sicher.
Für einen ca. 40 m langen Bogenabschnitt des vorhandenen Siels DN 3600 kam eine offene Bauweise mit Stahlbetonrohren nicht in Frage, da dieser Bereich zwischen zwei historischen Gebäuden liegt. Deshalb entschied man sich für eine Sanierung mit GfKGroßprofilen der Fa. Hobas. Die hydraulische Dimensionierung ergab eine ausreichende Profilgröße von DN 3000. Die statisch erforderliche Festigkeitsklasse der Rohre wurde mit SN 10.000 und die erforderliche Wanddicke mit 60 mm ermittelt. Das Gewicht der im Wickelverfahren hergestellten Rohre betrug etwa 1,5 t/m.
Die mittlere Radiuslänge der Kurve von nur etwa 20 m erforderte ein detailliertes Aufmaß durch Einsatz der 3D-Vermessungstechnik. Dies ermöglichte es, die Rohre hinsichtlich Baulänge und Abwinklung in einem Verlegeplan (Bild 4) zu beschreiben und werksseitig passgnau herzustellen. In einigen Abschnitten der Strecke war die Rohrverbindung über Muffe- und Spitzende mit Gleitringdichtung möglich. Die Besonderheit bestand hierbei in der Fertigung der Muffen, die werkseitig mit schrägem Muffenspiegel erfolgte. Die dadurch realisierten Abwinklungen reichten bis zu 1° ohne Bildung eines Muffenspalts. Die Kopplung dieser Rohre wurde mittels symmetrisch angeordneter Hebelpressen durchgeführt. Rohre mit größeren Abwinklungen wurden werksseitig auf die im Verlegeplan (Bild 4) dargestellte Gehrung geschnitten, vor Ort passgenau zusammengefügt und durch Überlaminate wasserdicht verschlossen. Insgesamt wurden 43 Einzelrohre mit Baulängen von 0,5 bis 2,0 m und der jeweils nötigen Abwinklung produziert und in das Siel eingebaut. Der Transport der Rohre durch den Kanal konnte aufgrund des großen Kanalquerschnitts mit einem Gabelstapler erfolgen. Besondere Aufmerksamkeit wurde dem Auflager der Rohre und der Sicherung gegen Auftrieb gewidmet. Um ein Aufschwimmen der Rohre im Altrohr bei der Ringraumverfüllung auszuschließen erfolgte die Verdämmung mehrstufig. Der Übergang von GfK auf Stahlbeton wurde über einen Fertigteilschacht hergestellt.
Relining Hamburg Geeststammsiel Bi/Hi = 2150/2580 mm
Bei der Begehung des um 1900 gebauten Geeststammsieles aus Mauerwerk wurden insbesondere Längsrisse im Kämpferbereich, Löcher in der Sohle, Grundwassereintritte, Fugenauswaschungen, Verwurzelungen und ausgebrochene Steine, festgestellt. Das schadhafte Siel mit den Abmessungen Bi/Hi = 2150/2580 mm (Klasse B alt) liegt im Verlauf der Straßen An der Alster und Schmilinskystraße im Stadtteil St. Georg. Die zu transportierenden Abwassermengen betragen minimal 150 l/s und maximal 3000 l/s.
Für die Renovierung des ca. 635 m langen Sielabschnittes entschied man sich für GfK Rohre der Fa. Hobas mit den inneren Abmessungen Bi/Hi = 1850/2300 mm. Die erforderliche Rohrwanddicke von s L = 27,0 mm resultiert aus den durch das Institut für Statik der LGA Bautechnik GmbH durchgeführten statischen Berechnungen [6] unter Voraussetzung von Altrohrzustand III gem. ATV M127 Teil 2 [1]. In Bild 5 sind die im Rahmen der Berechnung angesetzten Eingangsparameter aufgeführt. Sie wurden auf der Grundlage der Planunterlagen, des LVs sowie der Angaben des Rohrherstellers gewählt und stellen diejenigen Informationen dar, die auf jeden Fall für die statische Berechnung einer Sanierung unter Voraussetzung von Altrohrzustand III erforderlich sind. Bei Altrohrzustand I und II entfallen die Angaben zu Erdüberdeckung, Verkehrslasten und Baugrund. Über diese für die Berechnung erforderlichen Mindestinformationen hinaus sollten dem Ersteller der Statik jedoch insbesondere bei der Sanierung großer Profile weitergehende Unterlagen (Lagepläne, Längs- und Querschnitte, Baugrundgutachten, LV, Dokumentation des Altrohrzustandes, Materialprüfungszeugnisse) zur Verfügung gestellt werden. Er wird somit in die Lage versetzt, häufig auftretende Unstimmigkeiten zwischen vorgegebenen Eingangsparametern und Planunterlagen (z. B. anzusetzende Baugrundkennwerte, Lastanahmen, …) zu erkennen und mit den Beteiligten zu klären. Eine Einbeziehung des Statikers in die Planungsphase hätte insbesondere den Vorteil, dass er vorab auf Grundlage der bereits vorhandenen Unterlagen die zur Ermittlung der für seine Berechnungen erforderlichen Parameter (siehe Bild 5) durchzudurchzuführenden Untersuchungen gemeinsam mit Planer, Baugrundgutachter und Materialsachverständgem abstimmen kann. Wünschenswert wäre eine gemeinsame Begehung des zu sanierenden Kanals durch die Beteiligten.
Die statische Berechnung erfolgte im vorliegenden Fall mit Hilfe unterschiedlicher ebener FE-Modelle unter Berücksichtigung der tatsächlichen Geometrie der Rohre. Auf die detailierte Modellbildung wird hier nicht eingegangen, da sie in der Literatur z. B. [7] ausreichend beschrieben ist. An dem konkreten Beispiel soll jedoch insbesondere die bereits angesprochene Fehlerhaftigkeit einer Ersatzkreisberechnung aufgezeigt werden. Es handelt sich hier um ein gedrücktes GfKEiprofil Bi/Hi = 1850/2300 mm. In der Vergangenheit wurde häufig die Auffassung vertreten, dass Eiprofile aus statischer Sicht deutlich ungünstiger als Kreisprofile zu betrachten seien. Dies resultierte oftmals in einer Ersatzkreisberechnung, wobei der Ersatzkreisradius zwischen Scheitel- und Kämpferradius des Eiprofils schwankte. Der Sachverhalt soll anhand von Bild 6 diskutiert werden.
Hinsichtlich der Einwirkung eines Wasseraußendruckes ist allgemein bekannt, dass die Geometrie des Eiprofils aus statischer Sicht deutlich ungünstiger als die eines Kreispro- fils ist, da automatisch Biegespannungen auftreten und zudem der große Krümmungsradius im Kämpferbereich ein Stabilitätsversagen (Einbeulen in der schlanken Flanke) begünstigt. Bei der Einwirkung von Erd- und Verkehrslasten (Altrohrzustand III gem. [1]) liegen die Verhältnisse jedoch anders. In Bild 6 sind die Erddruckverteilungen (vertikal und horizontal) im Vergleich für das tatsächlich vorhandene Eiprofil und einen Ersatzkreis (Ersatzkreisradius = Scheitelradius) dargestellt. Der belastende Vertikaldruck qv und somit auch die resultierende Vertikalkraft Fv sind bei beiden Profilen identisch, da sie beide die gleiche Breite aufweisen. Die gerade bei Altrohrzustand III so wesentliche stützende Horizontalkraft Fh unterscheidet sich jedoch ganz erheblich. Der Horizontaldruck ist zwar in der Regel noch nahezu identisch (Er ist beim Ersatzkreis lediglich wegen der geringeren Höhe etwas kleiner.). Maßgebend ist jedoch die als horizontale Stützung wirkende resultierende Horizontalkraft. Sie ist im konkreten Fall für das Eiprofil (Fh = 2354 · qh) im Vergleich zum Ersatzkreis (Fh = 1904 · qh) um 23,6 % höher. Mit steigendem Verhältnis Höhe/Breite verbessern sich diese Verhältnisse noch. Bei sehr stark überhöhten Eiprofilen kann der Ausnahmefall auftreten, dass der Horizontalduck so groß wird, dass es zu einem Eindrücken des Kämpfers nach innen kommt. In diesen Fällen wird von einer Sanierung abgeraten.
Die Renovierung des vorhandenen Kanals begann im Oktober 2006 und wird Ende März 2007 abgeschlossen sein. Bild 7 zeigt einen Blick in das sanierte Sonderprofil. Während der Sanierungsarbeiten sind die Zuläufe zum Reliningabschnitt abgesperrt. Der Trockenwetterabfluss wird in ein Mischwassersiel Bi/Hi = 800/1290 mm umgeleitet. Während sich das Abwasser aus normalen Regenereignissen in das oberhalb liegende Sielnetz zurückstaut, muss Abwasser aus stärkeren Regenereignissen durch das Geeststammsiel geleitet werden, was in Abhängigkeit von der Gesamtwetterlage entsprechende Sicherungsmaßnahmen erfordert. Neben der Sicherstellung der Abflusssituation sind aus technischer Sicht die Realisierung einer 20 m langen, engen Kurve und die zusätzliche Sanierung einer etwa 50 m langen Überlaufleitung der Abmessungen Bi/Hi = 1720/2010 mm (KL D alt) bzw. Bi/H i = 2470/1475 mm (Maulprofil) hervorzuheben. Die entsprechenden Abschnitte wurden durch eine 3D-Vermessung digital aufgenommen und in exakte Verlegepläne übersetzt. Für die Kurve im Geeststammsiel ergaben sich erforderliche Profillängen von 0,5 m und 1,0 m mit zum Teil 1° schräger Muffenausbildung. Für die Kurve im Bereich der Überlaufleitung wurden werksseitig Pro- file auf Gehrung geschnitten und vor Ort durch Laminate verbunden.
Bei der Renovierung der Überlaufleitung stellte die strömungsmechanische Ausbildung des Profilübergangs eine besondere Herausforderung dar. Bedingt durch die Höhendifferenz beider Profile bestand das von Hobas gelieferte Übergangsprofil aus Unterund Oberteil, die einzeln an ihre Position im Kanal gebracht und dort montiert wurden. Die Ausführung des Profilübergangs sowie des spitzwinkligen Anschlusses des Sieles Gurlittstraße erfolgte mit Unterstützung des technischen Fachpersonals der Fa. Hobas.
Zum Umfang der Sanierungsarbeiten des Geeststammsiels gehörten auch der Erhalt, die Aufhebung und der Neubau von Schachtbauwerken. Entsprechend den Anforderungen der HSE wurden vier neue Tangentialschächte aus GfK eingebaut.
Relining Köln, Planfeststellungsabschnitt 8
In Folge der Umsetzung des Hochwasserschutzkonzeptes der Stadt Köln aus dem Jahr 1996 sind die baulichen Anlagen der Stadtentwässerungsbetriebe Köln im Planfeststellungsabschnitt 8 zwischen dem Theodor- Heuss-Ring in Köln Neustadt Nord und der Lachsgasse in Köln-Niehl an das neue Schutzziel von 11,90 m Kölner Pegel anzupassen. Die in diesem Zusammenhang auszuführenden Arbeiten umfassten die Renovierung von drei Kanalabschnitten mit unterschiedlichem Profilquerschnitt, die Erneuerung von drei Schächten und den Neubau von drei Schieberbauwerken in Fertigteilbauweise. Die Anforderungen an die Sanierung sind in den Zusätzlichen Technischen Vertragsbedingungen für die Renovierung von Kanälen und Schächten der Stadtentwässerungsbetriebe Köln festgelegt. Parallel zu den Sanierungsarbeiten erfolgte der Bau der Hochwasserschutzmaßnahmen im Bereich der teilweise kreuzenden Hochwasserschutzlinie, so dass sich ein Abstimmungsbedarf ergab. Hinsichtlich der Wasserhaltung mussten Provisorien zur Berücksichtigung des Regenwasserabflusses, des permanenten Mischwasseranfalls und ggf. hoher Rheinwasserstände geplant und ausgeführt werden.
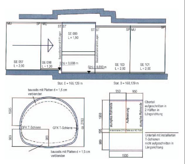
Das Relining des Mauerwerkskanals Bi/Hi = 3500/2900 mm im Abschnitt Theodor- Heuss-Ring erfolgte mit GfK-Maulprofilen Bi/Hi = 3190/2584 mm (Bild 8) über eine Länge von 197 m. In den 74 m langen Sanierungsabschnitt Elsa Brandströmstraße mit den Abmessungen Bi/Hi = 2700/1750 mm wurden Maulprofile der Größe Bi/Hi = 2368/1454 mm eingebaut. In beiden Abschnitten waren neben der Überwindung einer Stufe (Bild 9) auch Kurven zu realisieren. Diese Schwierigkeiten sowie die Sicherstellung eines schnellen Baufortschritts erforderten eine vorausgehende digitale Vermessung und die Erstellung von Verlegeplänen. Dabei wurden auch die Zwangspunkte in den Kanälen ermittelt, die letztlich zur endgültigen Festlegung der Profilabmessungen führten.
Im Bereich der Stufen (Bild 9) wurde die Höhe der Profile vergrößert, um eine Anströmkante zur Fließrichtung zu vermeiden. Damit die vergrößerten Profile an ihre Position transportiert werden konnten, teilte man sie in jeweils ein Ober- und ein Unterteil. Zur Erleichterung der Montage wurden auf den Unterteilen GfK-Winkelschienen als Führung für die Oberteile und zur Aufnahme des Klebers angebracht. Die durch den Höhenversatz entstandenen Öffnungen zu den kleineren Profilen wurden durch Fachpersonal der Fa. Hobas mittels vorgefertigter GfK-Plattenelemente und Laminaten geschlossen. Die Rohrlänge der Profile in geraden Abschnitten wurde zur Erleichterung der Montage auf 2,0 m begrenzt. Die Kurven wurden mit Rohren der Längen 0,5 bis 1,0 m hergestellt. Zur Vermeidung von Muffenspalten bei der Profilabwinklung erhielten die Muffen auch hier einen schrägen Muffenspiegel von bis zu 1°. Der Transport der Rohre im Kanal erfolgte mit handgeführten und motorisierten Einzugswagen.
Insgesamt erforderte die Maßnahme hohe Spezialisierungsanforderungen an die Fachgebiete Inlinersanierung Spezialtiefbau und Betonbau.
Zusammenfassung
Vorausgehend wurden Beispiele dargestellt, die hinsichtlich Planung und Ausführung von Kanalsanierungen sehr hohe Anforderungen an die Beteiligten stellen. Es wurde aufgezeigt, welche Lösungen bei besonderen Problemstellungen wie sehr engen Kurven oder vertikalen Versätzen zur Verfügung stehen. Auf weitere Besonderheiten die bei der Großprofilsanierung in der Planungsphase zu berücksichtigen sind wurde eingegangen (Profil- und Streckengeometrie, Baugrund- und Materialparameter, Lasteinwirkungen). Auf die Bedeutung der statischen Berechnung des vorhandenen Zustandes wie auch der geplanten Sanierung unter Berücksichtigung der tatsächlichen Verhältnisse (Geometrie, Material, Belastung) für die Dauerhaftigkeit einer derartigen Sanierungsmaßnahme wurde hingewiesen.
Literatur
  • [1] ATV-Merkblatt M 127 Teil 2 "Statische Berechnung zur Sanierung von Abwasserkanälen und - leitungen mit Lining- und Montageverfahren" (2000-01)
  • [2] DIN EN 752 Teil 5 "Entwässerungssyteme außerhalb von Gebäuden"
  • [3] ATV-Merkblatt M 143 Teil 3 "Inspektion, Instandsetzung, Sanierung und Erneuerung von Abwasserkanälen und -leitungen; Relinig" (1993-12)
  • [4] ATV-Merkblatt M 143 Teil 5 "Inspektion, Instandsetzung, Sanierung und Erneuerung von Abwasserkanälen und –leitungen" (1993-12)
  • [5] ATV-DVWK-Arbeitsblatt A 127 "Statische Berechnung von Abwasserkanälen und –leitungen" (2000-08)
  • [6] ATV-Merkblatt M 149 "Zustandserfassung, -klassifizierung und -bewertung von Entwässerungssystemen außerhalb von Gebäuden" (1999-04)
  • [7] Heinz Doll: Gutachterliche Stellungnahme Nr. BBIS 600253-1 der LGA Bautechnik GmbH vom 11.07.2006
  • [8] Heinz Doll: Sanierung von Großprofilen mit Hilfe von Liningverfahren – statische Aspekte; 3R internat. 43 (2004) Nr. 1, S. 29-33

Kontakt

Dr.-Ing. Heinz Doll

Nürnberg

Telefon:

+49(0)911/655-4846

E-Mail:

heinz.doll@lga.de

Internet:

Zur Webseite