Regenwasser als Betriebskostenfaktor
17.11.2010
Boomtown Falkensee bei Berlin, Sanierung des Gymnasiums
Regenspeicher aus Betonfertigteilen werden komplett mit Steuerung und Pumpentechnik geliefert. Die Schnittstelle zwischen Tiefbau (Zisternen und Sammelleitungen) und Sanitärtechnik (Druckerhöhungsanlage und Verteilleitungen) ist einfach und klar. Wird ein Komplett-System dieser Art verwendet, ist damit sichergestellt, dass die Komponenten kompatibel sind, selbst wenn sie von verschiedenen Gewerken montiert werden.
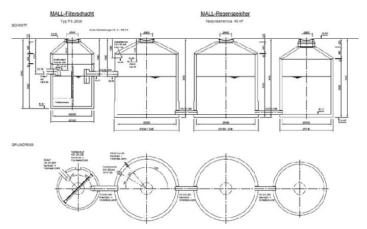
Die Regenspeicher werden als Betonfertigteile im Werk produziert und vom Hersteller vor Ort auf 15 cm hohem Sandbett versetzt. Drei Behälter in monolithischer Rundbauweise sind hier zu einem kommunizierenden Gefäß mit 40 m³ Nutzvolumen verbunden. Die Durchführungen sind mit hochwertigen Dichtungen so in den Behältern eingegossen, dass bei der Montage die Verbindungsrohre nur gesteckt werden müssen. Mit Schachtabdeckungen Klasse D sind diese Behälter befahrbar. Damit kann der Standort flexibel gewählt werden, sowohl unter Grünflächen als auch unter Stellplätzen und Zufahrten.
"Anlagen zur Regenwassernutzung sind preiswert und unkompliziert. Sie funktionieren zuverlässig, wenn Inspektion und Wartung regelmäßig durchgeführt werden. Bei neuerer Bauart entsprechend DIN 1989 genügt ein jährlicher Check", sagt Michael Hänsch, Fachplaner der Regenwassertechnik. Gute Hersteller übernehmen das oder beauftragen dazu einen von ihnen autorisierten Fachbetrieb, der die durchgeführte Prüfung mit Protokoll bestätigt. Falls erforderlich, werden Mängel gegen Berechnung sofort behoben. "Entspricht die Bautechnik nicht DIN 1989, sind die Angaben des Herstellers für die Wartungsintervalle verbindlich. So kann es z. B. notwendig sein, Filter öfter als ein Mal jährlich zu reinigen, " fügt Hänsch hinzu. Er plant bereits an der Regenwassernutzung für das nächste öffentliche Gebäude in Falkensee. Auch die Diesterweg-Schule bekommt Regenwassernutzung für die Toiletten und die Bewässerung der Außenanlagen.
Für alle öffentlichen Einrichtungen macht die Stadtverwaltung Falkensee dem Hochbauamt Vorgaben zur Art und Weise von Neubau- oder Sanierungsmaßnahmen an Gebäuden. Gleichrangige Ziele sind die Senkung der Betriebskosten und die Entlastung der Umwelt. Dies geht aus einer Information des Bürgermeisters Heiko Müller vom 17. Mai 2008 hervor. Neben einem detaillierten Katalog für das Energiemanagement ist auch in jedem Fall die Regenwassernutzung für WC-Anlagen zu prüfen. Handelt es sich um Schulen, so "sind aus pädagogischen Gründen für Schüler Umwelt entlastende umgesetzte Maßnahmen am Objekt zu dokumentieren oder in geeigneter Weise darzustellen, wie z. B. durch das Zentraldisplay im Lise-Meitner-Gymnasium".
| Fertigstellung: | September 2007 |
| Jahresniederschlag in Falkensee: | 560 mm |
| Sammelfläche Flachdach Hauptgebäude: | 2.000 m² |
| Sammelfläche extensives Gründach Neubau Aula: | 500 m² |
| Speichergröße: | 40 m³ |
| Speichertyp: | 3-Behälter-Anlage Mall, unterirdisch mit vorgeschaltetem Mall Filterschacht FS 2500 |
| Druckerhöhungsanlage: | Mall Monsun XL 14 m³/h max. Förderleistung |
| Regenwassernutzung für: | Toilettenspülung, Bewässerung |
| Bauherrschaft: | Städtisches Baudezernat, Falkensee |
| Fachplanung HLS: | Ing.-Büro für Haustechnik Michael Hänsch, Falkensee |
| Ausführung Sanitärtechnik Regenwasser: | Haustechnik Nauen, Nauen |
| Lieferung und Montage Regenwasseranlage: | Mall, Coswig |
| Unterstützung für Planer Dimensionierung und Ausführung der Behälter- und Haustechnik können genau auf das Projekt abgestimmt werden. Mall hilft den Planern bei der Berechnung zur Speichergröße, zur Pumpen- und Steuerungstechnik und stellt Ausschreibungstexte zur Verfügung. Individuelle Bauhöhen für die unterschiedlichen Behältertypen sind kein Problem. Zu- und Abläufe in Form von Kernbohrungen und Dichtungen lassen sich schon bei der Produktion integrieren. Eine überschlägige Berechnung kleiner Anlagen kann selbst vornehmen, wer auf der Website www.mall.info über „Regenwassernutzung“ auf „Regenspeicherdimensionierung“ klickt. |
| Agenda 21 Wasser wird in allen Lebensbereichen benötigt. Oberstes Ziel ist gesicherte Bereitstellung von Wasser in angemessener Menge und guter Qualität für die gesamte Weltbevölkerung bei gleichzeitiger Aufrechterhaltung der hydrologischen, biologischen und chemischen Funktionen der Ökosysteme, Anpassung der Aktivitäten des Menschen an die Belastungsgrenzen der Natur und Bekämpfung der Vektoren wasserinduzierter Krankheiten. Nur durch innovative Technologien sowie eine Verbesserung einheimischer Verfahrenstechniken wird es möglich sein, vollen Nutzen aus den begrenzt vorhandenen Wasserressourcen zu ziehen und die Ressourcen vor einer Verschmutzung zu bewahren. (Agenda 21, Kapitel 18.2) |
| Paketlösung auch für Privatobjekte Ideal für Planung und Ausführung sind so genannte Haus- und Garten-Pakete, bei denen außer Leitungen alle Komponenten mit Zubehör vormontiert und steckfertig zum Festpreis geliefert werden! Das „Mall-Garten-Paket“ enthält alle Komponenten wie Regenspeicher, Filter, Tauchmotorpumpe, Entnahmestelle und Zubehör. Das Wasser wird zu Tage gefördert und kann direkt zur Gartenbewässerung sowie zur Reinigung von Haus und Hof verwendet werden. Der Druck ist hoch genug zum Gartensprengen. Die Tauchpumpe mit integriertem Schaltautomat befindet sich unter Wasser und ist daher geräuscharm. Die Gartensäule als Entnahmestelle wird auf einem vor Ort hergestellten Sockelfundament kippsicher befestigt. Befestigungsmittel dazu werden mitgeliefert. Weitere Kombinationen mit Kunststoffspeicher stehen zur Verfügung. Das „Mall-Haus-Paket“ ist steckfertig vorbereitet mit den erforderlichen Zubehörteilen. Dazu gehört ein Regencenter, das im Gebäude an der Wand montiert wird. Trinkwassernachspeisung und Schallschutz sind integriert. Die Außenwand-Durchführung für alle erforderlichen Leitungen ist ebenfalls Bestandteil des Pakets. Bauseits müssen nur Leitungen verlegt und an Regencenter und Regenspeicher angeschlossen werden. |
Bauökologische Maßnahmen am Lise-Meitner-Gymnasium
|
Weitere News und Artikel
18.08.2025
News
Kanalgipfel 2025: Aussteller Aarsleff
Die Entwässerungssysteme unserer Städte sind ein wesentlicher Bestandteil des kommunalen Anlagevermögens. Die große Zukunftsaufgabe, vor der viele Kommunen stehen, besteht in einer fundierten technischen …
12.08.2025
News
Kanalgipfel 2025: Was meint der Mensch, was sieht die Maschine? | Netzübergreifende vergleichende Untersuchungen zu Qualitätsunterschieden bei Erfassung und Bewertung von Kanalisationen
Die Entwässerungssysteme unserer Städte sind ein wesentlicher …
07.08.2025
News
Kanalgipfel 2025: KI-basierte Substanzbewertung von Kanalisationen
Die Entwässerungssysteme unserer Städte sind ein wesentlicher Bestandteil des kommunalen Anlagevermögens. Die große Zukunftsaufgabe, vor der viele Kommunen stehen, besteht in …
07.08.2025
News
Kanalgipfel 2025: Netzweite operative Bedarfsplanung mittels individuellem Sanierungskosten- und Entscheidungsmodell
Die Entwässerungssysteme unserer Städte sind ein wesentlicher Bestandteil des kommunalen Anlagevermögens. Die große Zukunftsaufgabe, …
14.07.2025
News
Kanalgipfel 2025: Umsetzungsorientierte Finanzierungsstrategien zur Substanzerhaltung von Entwässerungssystemen
Die Entwässerungssysteme unserer Städte sind ein wesentlicher Bestandteil des kommunalen Anlagevermögens. Die große Zukunftsaufgabe, …
09.07.2025
News
Kanalgipfel 2025: Aussteller NIVUS
Die Entwässerungssysteme unserer Städte sind ein wesentlicher Bestandteil des kommunalen Anlagevermögens. Die große Zukunftsaufgabe, vor der viele Kommunen stehen, besteht in einer fundierten technischen und …
03.07.2025
News
Kanalgipfel 2025: Aussteller IBAK
Die Entwässerungssysteme unserer Städte sind ein wesentlicher Bestandteil des kommunalen Anlagevermögens. Die große Zukunftsaufgabe, vor der viele Kommunen stehen, besteht in einer fundierten technischen und …
01.07.2025
News
Kanalgipfel 2025: Aussteller Canal-Control Gruppe
Die Entwässerungssysteme unserer Städte sind ein wesentlicher Bestandteil des kommunalen Anlagevermögens. Die große Zukunftsaufgabe, vor der viele Kommunen stehen, besteht in einer fundierten …
27.06.2025
News
Kanalgipfel 2025: Aussteller WIEDEMANN enviro tec
Die Entwässerungssysteme unserer Städte sind ein wesentlicher Bestandteil des kommunalen Anlagevermögens. Die große Zukunftsaufgabe, vor der viele Kommunen stehen, besteht in einer fundierten …
24.06.2025
News
Kanalgipfel 2025: Aussteller Endoline Rohrsysteme
Die Entwässerungssysteme unserer Städte sind ein wesentlicher Bestandteil des kommunalen Anlagevermögens. Die große Zukunftsaufgabe, vor der viele Kommunen stehen, besteht in einer fundierten …
23.06.2025
News
Kanalgipfel 2025: Aussteller SAERTEX multiCom®
Die Entwässerungssysteme unserer Städte sind ein wesentlicher Bestandteil des kommunalen Anlagevermögens. Die große Zukunftsaufgabe, vor der viele Kommunen stehen, besteht in einer fundierten technischen …
17.06.2025
News
Kanalgipfel 2025: Finanzierungsbedarf in der Wasserwirtschaft
Die Entwässerungssysteme unserer Städte sind ein wesentlicher Bestandteil des kommunalen Anlagevermögens. Die große Zukunftsaufgabe, vor der viele Kommunen stehen, besteht in einer …
Kontakt
Klaus W. König
88662 Überlingen
Telefon:
07551 - 61 305
Fax:
07551 - 68 126
