Entwicklung und Erprobung einer ganzheitlichen Inspektions- und Sanierungsstrategie für Abwasserkanäle und -leitungen am Beispiel der Kanalisation der Stadt Ahlen
21.08.2007
Vor dem Hintergrund aktueller Erhebungsergebnisse über den Zustand der Kanäle in Deutschland haben die Instandhaltung und der Betrieb des öffentlichen Kanalnetzes zunehmend an Bedeutung gewonnen. Die Wirkung ausgeführter Sanierungen an öffentlichen Abwasserkanälen bzgl. der Fremdwasserreduzierung bleibt aber beschränkt, solange die Sanierung der privaten Leitungen nicht durchgeführt wird. Aus diesem Grund erscheint es erforderlich, ganzheitliche Strategien bei der Inspektion und Sanierung von öffentlichen und privaten Leitungen anzuwenden. Hierzu existieren bisher jedoch nur wenige Ansätze und es fehlen auch Techniken und zielführende Vorgehensweisen zur Durchführung von Untersuchungen.
Inhalte des Forschungsprojekts
Aus den oben genannten Gründen hat sich das Abwasserwerk der Stadt Ahlen in einem Pilotvorhaben im Auftrag des Ministeriums für Umwelt- und Naturschutz, Landwirtschaft und Verbraucherschutz des Landes Nordrhein-Westfalen zusammen mit seinen Projektpartnern (S&P Consult, Bochum und FiW, Aachen) die Entwicklung und Prüfung neuer Techniken zur Erfassung des Zustandes von Grundstücksentwässerungsleitungen sowie die Erarbeitung einer Systematik zur ganzheitlichen Zustandserfassung und Sanierungsplanung zum Ziel gesetzt.
Im Einzelnen wurden bei dem Forschungsprojekt nachfolgend aufgeführte Teilziele verfolgt:
- Entwicklung und Erprobung technischer Komponenten zur Beurteilung des Zustandes von Entwässerungsleitungen
- Durchführung der Zustandserfassung nach der adaptierbaren Systematik
- Erstellung eines ganzheitlichen Sanierungskonzepts für private und öffentliche Kanäle
- Erarbeitung einer Mustervorgehensweise zur Umsetzung des &45 der LBauO NRW
Die methodischen Ergebnisse der einzelnen Teilziele wurden im Rahmen eines Pi-lotsprojektes in einem ausgewählten Untersuchungsgebiet in Ahlen praxisnah erprobt.
Ergebnisse des Forschungsprojekts
Entwicklung und Erprobung neuer technischer Komponenten zur Beurteilung des Zustandes von Entwässerungsleitungen
Die Inspektion der öffentlichen und der privaten Kanäle [1], [2] wurde im Pilotgebiet vom Abwasserwerk der Stadt Ahlen selber durchgeführt. Die Stadt verfügt über ein eigenes Inspektionsfahrzeug, das im Rahmen des Forschungsvorhabens mit Einrichtungen zur Erfassung der Grundstücksentwässerungsanlagen (Kamerasystem "Lindauer Minischere" und "Automatisches System zur Kanalverlaufserfassung und Ortung (ASYS)") aufgerüstet wurde sowie über gut ausgebildetes Betriebspersonal, das in das Forschungs-vorhaben eingebunden wurde.
Die Inspektion erfolgte mit der Zielsetzung, die gesamten Grundstücksentwässerungs-anlagen vom Hauptkanal aus möglichst vollständig zu erfassen. Dies konnte durch Hindernisse in den Leitungen nicht immer realisiert werden. Die Erfassung des Verlaufs der Kanäle und Leitungen auf den Grundstücken wurde mit dem neu entwickelte System ASYS vorgenommen. Das System birgt den Vorteil, dass bei der Auswertung der Daten schnell ersichtlich wird, ob die Leitung bzw. ein Schaden an der Leitung unterhalb der Bodenplatte eines Gebäudes oder außerhalb liegt. Eine automatische Auswerteroutine kann somit erstellt bzw. genutzt werden. Bei den Einsätzen vor Ort in Ahlen wurde festgestellt, dass das System grundsätzlich in der Lage ist, den Leitungsverlauf exakt aufzunehmen und die Koordinaten in eine automatisierte Auswertung zur Sanierungsplanung einzubinden. Jedoch ist aufgefallen, dass die Handhabbarkeit für die Inspekteure vor Ort noch praxistauglicher gestaltet werden sollte. In weiteren Entwicklungen wird dies vom Hersteller berücksichtigt [3].
Zur Detektion von Fremdwasser in Hausanschlussleitungen wurde erstmals im Rahmen dieses Forschungsvorhabens ein Messgerät entwickelt, konstruiert und gebaut, welches zunächst in Hausanschlussleitungen mit DN 150 eingesetzt werden kann. Ziel dabei war es, Fremdwassereinträge aufzuspüren, die beispielsweise dadurch verursacht werden, dass Grundwasser in die Kanalrohre des Hausanschlussbereiches eindringt.
Da bereits ein kontinuierlicher Fremdwasserstrom von 0,2 Liter pro Minute über ein Jahr ein Volumen von rund 100 m3 ergibt und damit in der gleichen Größenordnung liegt wie der Wasserverbrauch eines durchschnittlichen Einfamilienhauses, war die Erzielung einer entsprechend hohen Messgenauigkeit im Bereich kleiner Volumenströme ein wesentliches Ziel, das prinzipiell auch erreicht wurde.
Das im entwickelten Messgerät angewendete kapazitive Messverfahren zur Bestimmung des Höhenstandes zeigte systembedingte Schwächen und lieferte keine zuverlässigen Daten. Als Ausweg wurden die Volumenströme nur auf der Basis der Geschwindigkeitsmesswerte ermittelt, was bei Rohrneigungen bis etwa 1 % gut funktioniert. Die Messung der Abwasser-Geschwindigkeit erfolgt dabei nach dem magnetisch-induktiven Messprinzip (MID).
Die guten Ergebnisse mehrerer Tests zeigen, dass das entwickelte Messgerät in der Lage ist, kleine Volumenströme in Leitungen DN 150 zu erfassen. Eine Weiterentwicklung des Messgeräts bzgl. der Höhenstandsmessung, seiner Einsetzbarkeit und eine Übertragung auf Leitungen andern Durchmessers erscheinen daher sehr sinnvoll [3].
Zustandserfassung
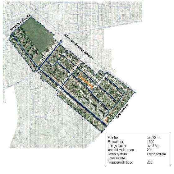
Die Zustandsuntersuchungen im Untersuchungsgebiet bilden die Grundlage für ein ganzheitliches Sanierungskonzept. Der Begriff „ganzheitlich“ umfasst die öffentlichen Kanäle und die private Leitungen. Folgende Untersuchungen wurden in einem ausgewählten Untersuchungsgebiet durchgeführt [4], [5]:
-
TV-Inspektion der öffentlichen Kanäle zur Erfassung der Durchmesser, der Schäden und des Zustandes sowie der nach Gauss-Krüger-Koordinaten definierten Lage der Anschlussstutzen des jeweiligen Grundstücks
-
Benebelung der Hausanschlüsse zur eindeutigen Zuordnung der Anschlüsse zum jeweiligen Grundstück sowie zur Feststellung von Fehlanschlüssen und Dränageanschlüssen
-
falls bei der Benebelung Fehlanschlüsse festgestellt wurden, wurden zusätzlich Tracer-Versuche durchgeführt
-
TV-Inspektion und Ortung der Grundstückentwässerungsleitungen zur Feststellung des Verlaufs und des Zustandes der Grundstücksentwässerungsanlagen
-
Zu den privaten Kanälen und Leitungen im Ahlener Stadtgebiet gibt es keine Informationen. Über das öffentliche Netz liegen Daten in Form einer Access – Datenbank vor [6]. Zur Charakterisierung des Netzes wurde der vorliegende Datenbestand ausgewertet [7]. Dadurch war es möglich, zu überprüfen, ob das ausgewählte Untersuchungsgebiet repräsentativ für das Gesamtnetz ist. In Tabelle 1 sind einige Ergebnisse der Datenauswertung der öffentlichen Kanäle zusammengestellt und den Ergebnissen der DWA Umfrage aus dem Jahr 2004 [8] gegenübergestellt.
| Gesamtnetz Ahlen | Untersuchungsgebiet | DWA Umfrage [8] | |
|---|---|---|---|
| Netzlänge | 465,52 km | 8,36 km | |
| Anzahl Haltungen | 12.060 | 201 | |
| Kanalart | Trennsystem entwässert über 80 % | Ausschließlich Trennsystem |
Über 46% Mischsystem, also deutlich geringerer Anteil an Trennsystemen als in Ahlen |
| Baujahr | 50 % jünger als 29 Jahre |
50 % jünger als 22 Jahre Bestand deutlich jünger als im Netzdurchschnitt |
Nur 30 % jünger als 25 Jahre, also deutlich älter als in Ahlen |
| Profilart | Vorwiegend Kreisprofil, ca. 98 % der Netzlänge | Ausschließlich Kreisprofil | |
| Nennweitenverteilung | DN 250 bis DN 400 dominieren, ca. 72 % | DN 250 bis DN 400 dominieren, ca. 80 % | |
| Werkstoff | Beton, 66 %, bei kleineren DN Stz | Beton, 75 %, bei kleineren DN Stz |
Beton, 46 %, Stz 43 %, also deutlich weniger Beton als in Ahlen |
| Tiefenlagen |
0-2 m (42 %) 0-3 m (84 %) 0-4 m (97 %) |
0-2 m (40 %) 0-3 m (83 %) 0-4 m (100 %) |
|
| Schadensverteilung |
Stutzen ca. 49 % Lageabw. ca. 10 % Undicht. ca. 9 |
Stutzen ca. 60 % Risse ca. 17 % Hindernis ca. 6 % |
Anschluss nur 20% (geringer, da Betonanteil niedriger) Riss 17 % |
Tabelle 1:Zusammenstellung der Ergebnisse der Datenanalyse
Die Auswahl des Untersuchungsgebietes erfolgte nach ortspezifischen und hydraulischen Randbedingungen (insbesondere Fremdwasseranfall) sowie nach dem Gefährdungspotential [9], [10].
Die Dokumentation aller erhobenen Daten – insbesondere auch der ASYS-Daten der privaten Kanäle und Leitungen – kann derzeit noch nicht in einem einheitlichen System erfolgen, da die Kompatibilität der einzelnen Datenarten nicht gegeben ist. Hier besteht noch Entwicklungsbedarf, um die aufwändige nachträgliche Datenbearbeitung zu ver-meiden.
Die Ergebnisse der Untersuchungen der öffentlichen Schmutzwasserkanäle wurden mit dem von der S&P Consult GmbH, Bochum entwickelten Netzmanagementmodell „STATUS Kanal“ ausgewertet [11], [12]. Dieses Modell basiert auf neuen Lösungsansätzen zur Bewertung des baulichen Zustandes von Abwasserkanälen. Als Basis für die Priorisierung kurzfristiger Sanierungsmaßnahmen und die Analyse des zukünftigen Sanierungsbedarfs kann durch dieses Modell ein sehr viel genaueres Zustandsbild geschaffen werden. Etwa die Hälfte der öffentlichen Haltungen im Untersuchungsgebiet ist zu sanieren. Die meisten Haltungen liegen jedoch in der Zustands- und Substanzklasse 2, d.h. dass hier langfristige Handlungsbedarf besteht und die Sanierung wahrscheinlich mittels Reparaturverfahren ausgeführt werden kann [11], [12]. Daraus kann die Schlussfolgerung gezogen werden, dass – wie vermutet - das hohe Fremdwasseraufkommen durch Schäden und Fehlanschlüsse im Bereich der Grundstücksentwässerung bedingt ist.
Zur Instandsetzung der privaten Kanäle und Leitungen sind Konzepte zu entwickeln, die im Gegensatz zu den öffentlichen Kanälen von sehr individuellen Randbedingungen geprägt werden. Daher wurde bei der Auswertung der Ergebnisse aus der Zustandserfassung der Grundstückentwässerungsanlagen auf eine Klassifizierung verzichtet und Art und Lage der Schäden in den Vordergrund gestellt.
Sanierungskonzept für öffentliche und private Leitungen im Untersuchungsgebiet
Grundsätzlich werden die Verfahren zur baulichen Sanierung der Kanalsubstanz nach DIN EN 752-5 [13] unterschieden nach Reparatur, Renovierung und Erneuerung. Da sich Grundstücksentwässerungsanlagen durch kleine Durchmesser, viele, enge Krümmer und Bögen sowie wenige Revisions- und Kontrollöffnungen auszeichnen, ist die Auswahl der Sanierungsverfahren für private Leitungen beschränkt.
Maßgeblich für die Verfahrensauswahl sind die vorgefundenen Schäden. Dabei ist zu unterscheiden nach Schadensart, Schadensverteilung und Schadensausmaß [2], [14], [15] sowie der Zugänglichkeit der Leitungen. Aus der Vielzahl von Sanierungsverfahren das technisch und wirtschaftlich günstigste oder auch eine Verfahrenskombination auszuwählen.
Für die öffentlichen Kanäle ergab sich aus der Bewertung nach „STATUS Kanal“ [11], [12] eine Vorauswahl der Verfahrenshauptgruppe für jede zu sanierende Haltung [16]. Bei dieser Verfahrensauswahl wird u.a. auch die Strategie des Netzbetreibers berücksichtigt. Für die privaten Kanäle erfolgte die Empfehlung für ein zu bevorzugendes Sanierungsverfahren auf der Basis der vorgefundenen Schadensart und –lage mit einer Entscheidungshilfetabelle. Für das Untersuchungsgebiet ergibt sich daraus eine erste Vorauswahl der Sanierungshauptgruppen (Abbildung 3 3).
Für die Sanierung der Grundstückentwässerungsanlagen wurden erste Konzepte erstellt [16]. Bei der Planung der ausführungsreifen Sanierung müssen weitere, für jedes Grundstück individuell zu klärende Randbedingungen berücksichtigt werden. Alle Grundstückseigentümer im Untersuchungsgebiet erhalten eine Infobroschüre „Untersuchung und Sanierung der Grundstücksentwässerung im Untersuchungsgebiet“ [17] und eine „Hausakte“ mit den Untersuchungsergebnissen ihrer Grundstücksentwässerung und einem grundstücksspezifischen Sanierungskonzept für die optisch inspizierten Bereiche der Grundstücksentwässerungsanlage.
Mustervorgehensweise
Im Zuge des Projektes wurden alternative Vorgehensweisen für den Weg von der ganzheitlichen Inspektion bis zur ganzheitliche Sanierungsstrategie zusammengestellt und daraus eine für das Abwasserwerk der Stadt Ahlen geeignete Strategie [18] entwickelt.
Ziel des Abwasserwerkes Ahlen ist es, die Fremdwasserproblematik möglichst zeitnah zu lösen ggf. unabhängig von den Fristen gemäß § 45 BauO NRW. Eine Verkürzung dieser Fristen ist aber nur zulässig, wenn von der Gemeinde nachgewiesen werden kann, dass konkrete Anhaltspunkte für Schadhaftigkeit vorliegen. Daher überprüft das Abwasserwerk Ahlen die Hausanschlussleitungen so weit wie möglich vom öffentlichen Kanal aus. Sollten Schäden festgestellt werden, so wird der Grundstückseigentümer zur Schadensbehebung und zum Nachweis der Dichtheit durch Wasserfüllstandsprüfung gemäß DIN 1986 Teil 30 aufgefordert.
Zur eindeutigen Zuordnung der Anschlussleitungen beabsichtigt das Abwasserwerk Ahlen in den nächsten Jahren alle Schmutzwasseranschlüsse in Bereichen mit Trennsystem durch Beneblung und ggf. zusätzlich Tracer-Versuche zu untersuchen.
Da das Abwasserwerk der Stadt Ahlen nicht über die personellen und maschinentech-nische Kapazitäten verfügt, um das im Forschungsvorhaben durchgeführte Konzept im ganzen Stadtgebiet umzusetzen, übernimmt das Abwasserwerk bei der Untersuchung und Sanierung der privaten Leitungen und Kanäle zukünftig eine beratende Rolle, um auch weiterhin einen guten und engen Kontakt zu den Bürgern sicherzustellen. Darüber hinaus wird die Qualitätssicherung durch konkrete Vorgaben zur Durchführung und Dokumentation der Dichtheitsprüfung [19] sowie zur Auswahl sachkundiger Unternehmen [20], [21] verbessert.
Zusammenfassung und Ausblick
Ein Fremdwasserkonzept kann nur wirkungsvoll umgesetzt werden, wenn die Sanierung ganzheitlich, also im öffentlichen Kanalbereich als auch in den privaten Kanälen und Leitungen durchgeführt wird. Dies hat auch das Abwasserwerk der Stadt Ahlen erkannt und sich in einem Pilotvorhaben zusammen mit seinen Projektpartnern die Entwicklung und Prüfung neuer Techniken zur Erfassung des Zustandes von Grundstücksentwässerungsleitungen sowie die Erarbeitung einer Systematik zur ganzheitlichen Zustandserfassung und Sanierungsplanung zum Ziel gesetzt.
In einem als repräsentativ für die Stadt Ahlen ausgewählten Untersuchungsgebiet mit 205 Grundstücken wurden zunächst die öffentlichen Schmutzwasserkanäle untersucht und nach dem von der S&P Consult GmbH, Bochum entwickelten Netzmanagementmodell „STATUS Kanal“ bewertet, welches zu einer realistischeren Beurteilung des tatsächlichen Haltungszustandes führt als die bisher gängigen Verfahren. Als Ergebnis der Untersuchung der öffentlichen Kanäle ist festzuhalten, dass etwa die Hälfte der Haltungen im Untersuchungsgebiet langfristig zu sanieren ist.
Zur Erfassung geringer Fremdwasserströme im Hausanschlussbereich wurde erstmals ein Messgerät zur Durchflussmessung entwickelt und der Prototyp mit guten Ergebnissen getestet.
Anschließend wurden die privaten Kanäle und Leitungen ausschließlich vom öffentlichen Kanal aus mit dem Kamerasystem „Lindauer Minischere“ und dem System ASYS, welches zur Lokalisierung von Grundstücksentwässerungsleitungen entwickelt wurde, untersucht. Hindernisse, Lageabweichungen, Versätze oder Rohrverengungen führten häufig zum vorzeitigen Abbruch der Inspektion, so dass kaum ein Grundstückentwässerungssystem komplett befahren werden konnte. Der Praxiseinsatz des ASYS-Systems hat gezeigt, dass die Handhabbarkeit für die Inspekteure vor Ort, die Datenübertragung und -bearbeitung noch praxistauglicher gestaltet werden müssen.
Basierend auf den Untersuchungsergebnissen wurden Sanierungskonzepte aufgestellt. Für einen ersten Sanierungsvorschlag für die Grundstücksentwässerungsanlagen im Untersuchungsgebiet wurde eine Entscheidungshilfetabelle entwickelt, die die Eignung der Sanierungsverfahren abhängig von den bei der Inspektion vorgefundenen Schäden und der Lage im Bezug auf die Grundplatte des Gebäudes berücksichtigt. Die Ergebnisse der Untersuchungen sowie die Sanierungskonzepte werden den Grundstückseigentümern in Form von grundstücksspezifischen Hausakten mit einer erläuternden Infobroschüre ausgehändigt.
Es ist beabsichtigt, nach Abschluss der Sanierungsmaßnahmen im Untersuchungsgebiet erneut Fremdwassermessungen durchzuführen, um die Effizienz der durchgeführten Maßnahmen beurteilen zu können.
Da die vorab beschriebene Vorgehensweise sehr zeit- und personalaufwändig ist, bleibt diese Systematik in Ahlen auf das Forschungsvorhaben beschränkt. Es wurde jedoch eine Vorgehensweise für das gesamte Stadtgebiet entwickelt, bei der das Abwasserwerk der Stadt Ahlen den Grundstückseigentümern unterstützend und beratend zur Seite steht.
| Schadensbeschreibung | Sanierungsverfahren | ||||||||
|---|---|---|---|---|---|---|---|---|---|
| Schadens-kürzel | Langtext Schaden | Vorbereitende Maßnahmen (Fräsarbeiten) | Kurzliner | Innenman-schette | Berstlining | Schlauch-lining | Flutungs-verfahren (bei geeignetem Boden) | offene Bauweise | Abhängen unter Kellerdecke |
| AN | Abzweig nicht fachgerecht eingebaut (nähere Beschreibung des Zustandes) | möglicherweise Fräsarbeiten | -2 | -2 | -1 | -2 | -1 | 2 | 2 |
| AP | Wurzeleinwuchs durch den Abzweig | Fräsarbeiten | -2 | -2 | -1 | -2 | 0 | 2 | 2 |
| AR | Risse im Abzweig | -2 | -2 | -1 | -2 | -1 | 2 | 2 | |
| BA | Fehlendes Rohrstück am Schacht / Bauwerksanschluss | -2 | -2 | 2 | -2 | 0 | 2 | 2 | |
| BC | Fehlendes Rohrstück im Verbindungsbereich | -2 | -2 | 2 | -2 | 0 | 2 | 2 | |
| BR | Rohrbruch ohne Deformation (Segmente des Rohres sichtbar verschoben) | möglicherweise Fräsarbeiten | -2 | -2 | 2 | -2 | -2 | 2 | 2 |
| BS | Fehlende Scherbe (Steinzeug) | -2 | -2 | 2 | -2 | -2 | 2 | 2 | |
| BT | Einsturz | -2 | -2 | 2 | -2 | -2 | 2 | 2 | |
| BW | Loch (alle Materialien [außer Steinzeug]) und fehlende Rohrwandungen größerer Ausmaße (alle Materialien) | -2 | -2 | 2 | -2 | 0 | 2 | 2 | |
| C- | Innenkorrosion über gesamten Umfang | 2 | 2 | 2 | 2 | 0 | 2 | 2 | |
| CC | Innenkorrosion an der Rohrverbindung | 2 | 2 | 2 | 2 | 0 | 2 | 2 | |
| D- | Deformation biegeweicher Rohre "primäre Deformation" | 0 | 0 | 2 | 0 | 0 | 2 | 2 | |
| DR | Deformation infolge von Rissbildung "sekundäre Deformation" | 0 | 0 | 2 | 0 | 0 | 2 | 2 | |
| H- | Hindernis, allgemein | Reinigung, möglicherweise Fräsarbeiten | 0 | 0 | 2 | 0 | -2 | 2 | 2 |
| HD | Sedimentation | Reinigung | 0 | 0 | 2 | 0 | -2 | 2 | 2 |
| HE | Einragendes Hindernis (Sekundärschaden) | Fräsarbeiten | 0 | 0 | 2 | 0 | -2 | 2 | 2 |
| HG | Einragender Dichtring | Fräsarbeiten | 0 | 0 | 2 | 0 | -2 | 2 | 2 |
| HI | Inkrustation | Fräsarbeiten | 0 | 0 | 2 | 0 | -2 | 2 | 2 |
| HM | Einragendes Dichtmaterial | Fräsarbeiten | 0 | 0 | 2 | 0 | -2 | 2 | 2 |
| HP | Wurzeleinwuchs (Sekundärschaden) | Fräsarbeiten | 0 | 0 | 2 | 0 | -2 | 2 | 2 |
| HS | Einragende Scherbe | Fräsarbeiten | 0 | 0 | 2 | 0 | -2 | 2 | 2 |
| HZ | Kreuzende Fremdleitung/Kabel | -2 | -2 | 2 | -2 | -2 | 2 | 2 | |
| LB | Ausbiegung | -2 | -2 | 1 | -2 | 0 | 2 | 2 | |
| LH | Horizontaler Versatz | Fräsarbeiten | -2 | -2 | 1 | -2 | 0 | 2 | 2 |
| LL | Axialverschiebung | -2 | -2 | 1 | -2 | 0 | 2 | 2 | |
| LV | Vertikaler Versatz | Fräsarbeiten | -2 | -2 | 1 | -2 | 0 | 2 | 2 |
| RC | Riss im Verbindungsbereich | 2 | 2 | 2 | 2 | 2 | 2 | 2 | |
| RL | Längsriss | -1 | -1 | 2 | 1 | 1 | 2 | 2 | |
| RQ | Queriss | 1 | 1 | 2 | 1 | 1 | 2 | 2 | |
| RS | Scherbenbildung | -1 | -1 | 2 | 2 | 2 | 2 | 2 | |
| RX | Risse von einem Punkt ausgehend | -1 | -1 | 2 | 2 | 2 | 2 | 2 | |
| SE | Stutzen einragend | Fräsarbeiten | -2 | -2 | -1 | -2 | -1 | 2 | 2 |
| SN | Stutzen nicht fachgerecht ausgeführt | möglicherweise Fräsarbeiten | -2 | -2 | -1 | -2 | -1 | 2 | 2 |
| SO | Stutzen außen vorsitzend | -2 | -2 | -1 | -2 | -1 | 2 | 2 | |
| SP | Wurzeleinwuchs durch den Stutzen | Fräsarbeiten | -2 | -2 | -1 | -2 | 0 | 2 | 2 |
| SR | Riss im Stutzen (Stutzenbereich) | -2 | -2 | -1 | -2 | -1 | -2 | -2 | |
| SU | Stutzen verschlossen | -2 | -2 | -1 | -2 | 0 | 2 | 2 | |
| UA | Undichte Schacht-/ Bauwerksanbindung | -2 | -2 | 2 | 1 | 1 | 2 | 2 | |
| UC | Undichte Rohrverbindung | 2 | 2 | 2 | 2 | 2 | 2 | 2 | |
| UW | Undichte Rohrwandung | 2 | 2 | 2 | 2 | 2 | 2 | 2 | |
| V- | Mechanischer Verschleiß allgemein | 2 | 2 | 2 | 2 | 0 | 2 | 2 | |
| VA | Mechanischer Verschleiß /Abplatzung am Schacht / Bauwerksanschluss | -1 | -2 | 2 | 1 | 0 | 2 | 2 | |
| VC | Mechanischer Verschleiß / Abplatzung an der Rohrverbindung | 2 | 2 | 2 | 2 | 0 | 2 | 2 | |
| VW | Abplatzung an der Rohrwand | 2 | 2 | 2 | 2 | 0 | 2 | 2 | |
| Legende: | |||||||||
| 2 | sehr gut geeignet (zur Schadensbehebung) | Die Bewertung „0“ besagt, dass unter wirtschaftlichen Erwägungen u.U. ein Sanierungsverfahren angewendet werden kann, das die Funktionsfähigkeit und die Dichtheit der Leitung wieder herstellt ohne den Schaden letztendlich zu beheben. Das ist z.B. der Fall, wenn sich in einer Haltung, in der Schäden vorgefunden wurden, die mit einem Inliner zu sanieren sind, ein einzelner, geringfügiger Lageversatz befindet. Der Lageversatz wird in dem Fall nicht behoben. | |||||||
| 1 | geeignet (zur Schadensbehebung) | ||||||||
| -1 | weniger geeignet (zur Schadensbehebung) | ||||||||
| -2 | nicht geeignet (zur Schadensbehebung) | ||||||||
| 0 | anwendbar, behebt den Schaden aber nicht | ||||||||
Tabelle 2: Entscheidungshilfetabelle zur Auswahl von Sanierungsverfahren für die privaten Leitungen
Literaturverzeichnis:
[1] Merkblatt ATV-M 143: Sanierung von Entwässerungssystemen außerhalb von Gebäuden, Teil 2: Optische Inspektion (04/1999)
[2] Bundesministerium für Verkehr, Bau- und Wohnungswesen / Bundesministerium der Verteidigung; „Arbeitshilfen Abwasser - Planung, Bau und Betrieb von abwassertechnischen Anlagen in Liegenschaften des Bundes“; Berlin / Bonn (2004); www.arbeitshilfen-abwasser.de, letzte Aktualisierung März 2006
[3] FiW (Forschungsinstitut für Wasser- und Abfallwirtschaft an der RWTH Aachen) (2007): Entwicklung und Erprobung neuer Technischer Komponenten zur Beurteilung des Zustandes von Entwässerungsleitungen. Teilbericht des Forschungsvorhabens „Entwicklung und Erprobung einer ganzheitlichen Inspektions- und Sanierungsstrategie für Abwasserkanäle und -leitungen am Beispiel der Kanalisation der Stadt Ahlen“, unveröffentlicht, Februar 2007
[4] Stein, D.: Instandhaltung von Kanalisationen, ISBN 3-433-01315-2, Verlag Ernst & Sohn, Berlin 1999
[5] Ingenieurbüro Prof. Dr.-Ing. Stein & Partner GmbH: Bericht „Zustandserfassung im Untersuchungsgebiet“, Teilbericht des Forschungsvorhabens „Entwicklung und Erprobung einer ganzheitlichen Inspektions- und Sanierungsstrategie für Abwasserkanäle und –leitungen am Beispiel der Kanalisation der Stadt Ahlen“, Bochum 08/2006
[6] Arbeitsblatt ATV-A 145: Aufbau und Anwendung einer Kanaldatenbank, (01/1998)
[7] Ingenieurbüro Prof. Dr.-Ing. Stein & Partner GmbH: Bericht „Erfassung des Datenbestandes“, Teilbericht des Forschungsvorhabens „Entwicklung und Erprobung einer ganzheitlichen Inspektions- und Sanierungsstrategie für Abwasserkanäle und –leitungen am Beispiel der Kanalisation der Stadt Ahlen“, Bochum 11/2005
[8] Berger, C., Lohaus, J.: Zustand der Kanalisation in Deutschland, KA Abwasser Abfall (05/2005)
[9] Ingenieurbüro Prof. Dr.-Ing. Stein & Partner GmbH: Bericht „Auswahl eines Unter-suchungsgebietes innerhalb des Pilotgebietes“, Teilbericht des Forschungsvorhabens „Entwicklung und Erprobung einer ganzheitlichen Inspektions- und Sanierungsstrategie für Abwasserkanäle und –leitungen am Beispiel der Kanalisation der Stadt Ahlen“, Bochum 11/2005
[10] Ingenieurbüro Prof. Dr.-Ing. Stein & Partner GmbH: Bericht „Durchführung von Fremdwassermessungen im Pilotgebiet“, Teilbericht des Forschungsvorhabens „Entwicklung und Erprobung einer ganzheitlichen Inspektions- und Sanierungsstrategie für Abwasserkanäle und –leitungen am Beispiel der Kanalisation der Stadt Ahlen“, Bochum 11/2005
[11] Lipkow, A.; Stein, R.; Trujillo, R.: Optimierung des Kanalbetriebes auf Basis haltungsbezogener Substanzprognosen. In: Ernst & Sohn – Special 3/04. Kanal- und Rohrleitungsbau - Sanierung von Kanälen und Rohrleitungen. Berlin, 2004
[12] Uhlenbroch, A.; Stein, R.; Trujillo, R.: Substanzbewertung und Erhaltung von Abwassernetzen. 7. Symposium zur Instandhaltung von Abwasserleitungen. Lindau, 2006
[13] DIN EN 752-5: Entwässerungssysteme außerhalb von Gebäuden - Teil 5: Sanierung (11/1997)
[14] ATV-M 149: “Zustandserfassung, -klassifizierung und –bewertung von Entwässe-rungssystemen außerhalb von Gebäuden“, Hennef (1999).
[15] DIN EN 13508: Erfassung des Zustandes von Entwässerungssystemen außerhalb von Gebäuden, Teil 2: Kodiersysteme für die optische Inspektion (07/2003)
[16] Ingenieurbüro Prof. Dr.-Ing. Stein & Partner GmbH: Bericht „Sanierungskonzept“, Teilbericht des Forschungsvorhabens „Entwicklung und Erprobung einer ganzheitlichen Inspektions- und Sanierungsstrategie für Abwasserkanäle und –leitungen am Beispiel der Kanalisation der Stadt Ahlen“, Bochum 12/2006
[17] Infobroschüre „Untersuchung und Sanierung der Grundstücksentwässerung im Untersuchungsgebiet“ im Rahmen des Forschungsprojektes „Entwicklung und Erprobung einer ganzheitlichen Inspektions- und Sanierungsstrategie für Abwasserkanäle und –leitungen am Beispiel der Kanalisation der Stadt Ahlen“ (01/2007)
[18] Ingenieurbüro Prof. Dr.-Ing. Stein & Partner GmbH: Bericht „Mustervorgehenswei-se zur Umsetzung des § 45 der Landesbauordnung NRW“, Teilbericht des Forschungsvorhabens „Entwicklung und Erprobung einer ganzheitlichen Inspektions- und Sanierungsstrategie für Abwasserkanäle und –leitungen am Beispiel der Kanalisation der Stadt Ahlen“, Bochum 07/2006
[19] Informationsblatt „Anforderungen der Stadt Ahlen zur Durchführung des Dichtheitsnachweises von privaten Schmutzwasserleitungen.“
[20] Satzung über die Zulassung von Sachkundigen für Dichtheitsprüfungen von Abwasseranlagen gemäß § 45 BauO NRW im Stadtgebiet Ahlen, (10/2003)
[21] Informationsblatt „Anforderungsprofil der Stadt Ahlen an Sachkundige für die Zulassung der Durchführung von Dichtheitsprüfungen entspr. des § 45 BauO NRW für private Schmutz- und Mischwasserentwässerungsleitungen.“
Weitere News und Artikel
18.08.2025
News
Kanalgipfel 2025: Aussteller Aarsleff
Die Entwässerungssysteme unserer Städte sind ein wesentlicher Bestandteil des kommunalen Anlagevermögens. Die große Zukunftsaufgabe, vor der viele Kommunen stehen, besteht in einer fundierten technischen …
12.08.2025
News
Kanalgipfel 2025: Was meint der Mensch, was sieht die Maschine? | Netzübergreifende vergleichende Untersuchungen zu Qualitätsunterschieden bei Erfassung und Bewertung von Kanalisationen
Die Entwässerungssysteme unserer Städte sind ein wesentlicher …
07.08.2025
News
Kanalgipfel 2025: KI-basierte Substanzbewertung von Kanalisationen
Die Entwässerungssysteme unserer Städte sind ein wesentlicher Bestandteil des kommunalen Anlagevermögens. Die große Zukunftsaufgabe, vor der viele Kommunen stehen, besteht in …
07.08.2025
News
Kanalgipfel 2025: Netzweite operative Bedarfsplanung mittels individuellem Sanierungskosten- und Entscheidungsmodell
Die Entwässerungssysteme unserer Städte sind ein wesentlicher Bestandteil des kommunalen Anlagevermögens. Die große Zukunftsaufgabe, …
14.07.2025
News
Kanalgipfel 2025: Umsetzungsorientierte Finanzierungsstrategien zur Substanzerhaltung von Entwässerungssystemen
Die Entwässerungssysteme unserer Städte sind ein wesentlicher Bestandteil des kommunalen Anlagevermögens. Die große Zukunftsaufgabe, …
09.07.2025
News
Kanalgipfel 2025: Aussteller NIVUS
Die Entwässerungssysteme unserer Städte sind ein wesentlicher Bestandteil des kommunalen Anlagevermögens. Die große Zukunftsaufgabe, vor der viele Kommunen stehen, besteht in einer fundierten technischen und …
03.07.2025
News
Kanalgipfel 2025: Aussteller IBAK
Die Entwässerungssysteme unserer Städte sind ein wesentlicher Bestandteil des kommunalen Anlagevermögens. Die große Zukunftsaufgabe, vor der viele Kommunen stehen, besteht in einer fundierten technischen und …
01.07.2025
News
Kanalgipfel 2025: Aussteller Canal-Control Gruppe
Die Entwässerungssysteme unserer Städte sind ein wesentlicher Bestandteil des kommunalen Anlagevermögens. Die große Zukunftsaufgabe, vor der viele Kommunen stehen, besteht in einer fundierten …
27.06.2025
News
Kanalgipfel 2025: Aussteller WIEDEMANN enviro tec
Die Entwässerungssysteme unserer Städte sind ein wesentlicher Bestandteil des kommunalen Anlagevermögens. Die große Zukunftsaufgabe, vor der viele Kommunen stehen, besteht in einer fundierten …
24.06.2025
News
Kanalgipfel 2025: Aussteller Endoline Rohrsysteme
Die Entwässerungssysteme unserer Städte sind ein wesentlicher Bestandteil des kommunalen Anlagevermögens. Die große Zukunftsaufgabe, vor der viele Kommunen stehen, besteht in einer fundierten …
23.06.2025
News
Kanalgipfel 2025: Aussteller SAERTEX multiCom®
Die Entwässerungssysteme unserer Städte sind ein wesentlicher Bestandteil des kommunalen Anlagevermögens. Die große Zukunftsaufgabe, vor der viele Kommunen stehen, besteht in einer fundierten technischen …
17.06.2025
News
Kanalgipfel 2025: Finanzierungsbedarf in der Wasserwirtschaft
Die Entwässerungssysteme unserer Städte sind ein wesentlicher Bestandteil des kommunalen Anlagevermögens. Die große Zukunftsaufgabe, vor der viele Kommunen stehen, besteht in einer …
Kontakt
S & P Consult GmbH
Amely Dyrbusch
Konrad-Zuse-Straße 6
44801 Bochum
Deutschland
Telefon:
+49 (0) 234 / 5167-0
Fax:
+49 (0) 234 / 5167-109
